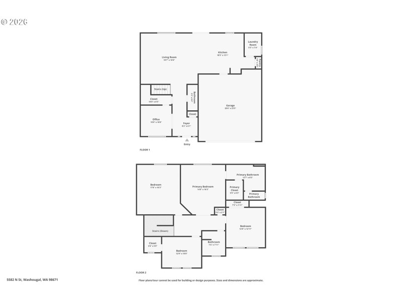
Turn-Key home offering 5 bedrooms total, including an office/den on the main level with closet, situated on a stunning lot with gated RV parking and a 7x14 tool shed (2022). New interior paint throughout, professionally cleaned carpets, and newly serviced gas heat and central A/C reflect pride of ownership and provide peace-of-mind. Sun-drenched living room offers a gas fireplace and dark hand-scraped style laminate flooring. The kitchen includes a tile island, brand-new microwave, nicely sized pantry, and all appliances staying. Added cabinetry with washer and dryer laundry room is located off an organizer's dream garage with lofted ceilings and extra racks, designed for efficiency and maximizing space. Rooms feel larger than expected, and the primary suite is no exception, featuring a double-door entry and an ensuite with double sinks, a distinctive soaking tub, and a separate shower. American top-down/bottom-up blinds throughout, new toilets, and roof and gutters cleaned with newly sealed roof vents. Outdoor spaces are designed for both function and enjoyment with a massive 28x14 covered patio with added concrete and clear corrugated covering, fenced lot, fresh bark dust, irrigation lines, French drain, new retaining wall, raised garden beds, herb plantings including lemongrass, blueberry bushes, and established privacy hedges. Delightfully move-in ready, available for a quick close, and waiting for its next chapter. Located in one of the few communities offering a true community-center lifestyle, residents enjoy access to a clubhouse with pool, hot tub, sauna, basketball court, game room, and park.
39th Street N, left on J street, follow around curve, R on P street, R on 55th Street
Dwelling Type: Residential
Subdivision: SUNSET RIDGE
Year Built: 2004, County: US
39th Street N, left on J street, follow around curve, R on P street, R on 55th Street
Listing is courtesy of Windermere Northwest Living
Sign in to your account to continue