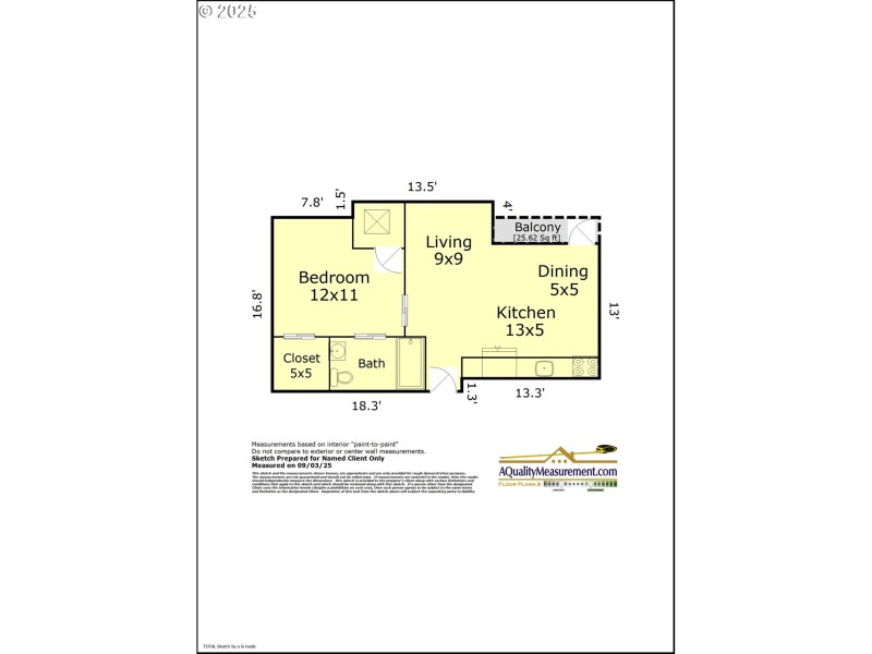
Stylish Condo in Portland’s Lloyd District, This true 1-bedroom, 1-bath condo is perched on the 6th floor with east-facing exposure. Expansive floor-to-ceiling windows create a seamless connection between indoors and out, bathing the space in abundant natural light. A private patio offers beautiful park and cityscape views for your enjoyment. The unit features a brand-new stainless steel appliances, new LVP flooring, fresh crisp interior paint, a walk-in closet, in-unit laundry, and an open layout designed for modern living. Cascadian Court is a modern 9-story condominium built in 2002 with 60 units, ideally located at NE Holladay & 6th Avenue in the heart of the Lloyd District—offering easy access to TriMet, shopping, dining, and downtown. The shared courtyard features lush landscaping and a BBQ area for residents to enjoy. Monthly parking is available nearby, with rates ranging from $150–$180 per month. A fantastic opportunity to own a light-filled, move-in-ready condo with unbeatable access to all that Portland has to offer!
Corner of 6th and Holladay
Dwelling Type: Residential
Subdivision: LLOYD DISTRICT
Year Built: 2001, County: US
Corner of 6th and Holladay
Listing is courtesy of Portland's Alternative Inc., Realtors
Sign in to your account to continue