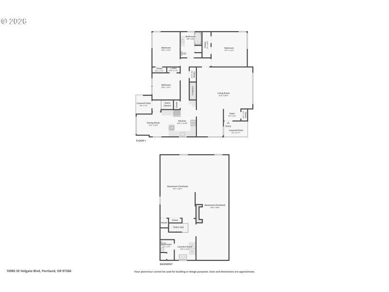
Let’s be real: this is a single-family home with a condo label and an HOA fee so low you’ll barely notice it. It’s totally turn-key, meaning you can spend your first weekend hosting a housewarming instead of painting baseboards. Why You’ll Love It - The Vibe: Massive windows and an open floor plan on the main level. Most of the floor is gleaming hardwood, so it’s easy to clean and looks sharp. The Basement: This isn't just a "finished basement" It’s huge, and ready for whatever you need. Use it as a media room, a gym, or, since the square footage is there, look into converting it into a separate ADU/living space. The "Big Ticket" Stuff: You won’t be hit with surprise repairs. The furnace and AC are only two years old, the electrical panel is upgraded, and the roof, fiber cement siding, and exterior paint are in great shape. Parking: No circling the block. You’ve got a private driveway with room for two cars. Location: Heart of Lents, super close to transit, schools, and local spots. Cozy Factor: A main-floor fireplace that actually looks good and makes the living room the place to be. Space: 3 Bedrooms/2 Full Baths. This place is solid, spacious, and ready for you to just move in and start living! [Home Energy Score = 3. HES Report at https://rpt.greenbuildingregistry.com/hes/OR10235354]
Holgate and 109th
Dwelling Type: Residential
Subdivision: N/A
Year Built: 1954, County: US
Holgate and 109th
Listing is courtesy of Redfin
Sign in to your account to continue