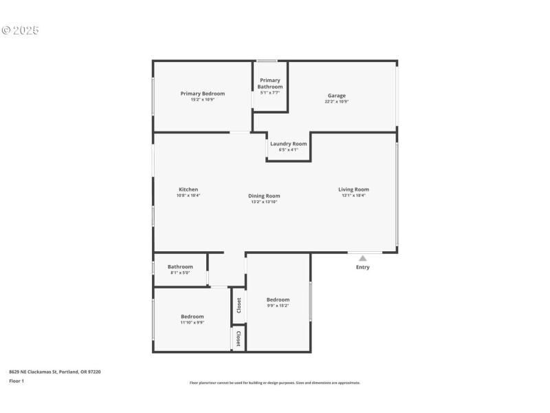
Step into the pinnacle of modern comfort: completely reimagined, thoughtfully renovated, and perfectly situated in Portland’s charming eastside Montavilla area. Welcome to 8629 NE Clackamas Street — a home where every detail has been elevated for beauty, efficiency, and ease of living.From the moment you arrive, you’ll notice the care and craftsmanship that define this transformation. New siding, new roof, new electrical, new plumbing, and an entirely new kitchen and bathrooms — all brought together with a designer’s touch. Every surface feels fresh, refined, and purposeful, giving this home the perfect blend of character and contemporary style.Inside, the open-concept floor plan flows effortlessly across light-filled living spaces with brand-new flooring, fresh interior paint, and upgraded fixtures throughout. The living room welcomes you with warmth and natural light, while the kitchen takes center stage — featuring sleek cabinetry, quartz countertops, stainless steel appliances, and modern tile backsplash that create a clean, polished aesthetic.Each bedroom offers comfort and versatility, while both bathrooms have been fully redesigned with modern tile, new vanities, and timeless finishes. Every inch of this home has been rethought to balance functionality and design — from the lighting to the flow, from the storage to the details.Step outside to your spacious backyard oasis — set on a large 100x100 lot with mature trees, a covered patio, and plenty of room to garden, entertain, or simply relax. A garden shed and carport add utility, while the fenced yard brings privacy and peace.With all major systems replaced, this home lives like new — without sacrificing the charm of its established neighborhood. Located just minutes from local parks, shops, restaurants, and multiple commute routes, 8629 NE Clackamas Street offers the perfect Portland lifestyle: modern design, move-in-ready comfort, and a location that connects you to everything. [Home Energy Score = 5. HES Report at https://rpt.greenbuildingregistry.com/hes/OR10199765]
NE Clackamas & Halsey
Dwelling Type: Residential
Subdivision: N/A
Year Built: 1957, County: US
NE Clackamas & Halsey
Listing is courtesy of Modern Realty
Sign in to your account to continue