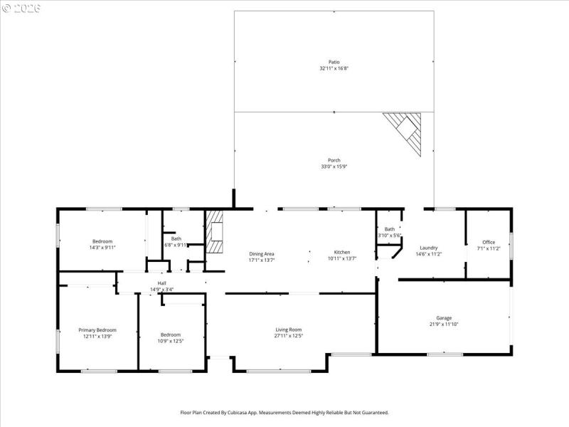
You found it! The in-town country unicorn with acreage you've been searching for! Have it all- space, flexibility, and privacy. This charming one-level brick home sits on a full acre within city limits, and is zoned R5, offering room to live, grow, and adapt over time. Great options for ADU opportunities, multi-home, or multi-gen. Just outside is an expansive outdoor living space built for year-round use with a covered kitchen and lounge/living area, fireplace, Blackstone cooktop, sink, and integrated infrared heating. Outdoors living also offers a 4-room shop (including inside wood shed), full RV hookups, additional carport, deluxe chicken coop, friut trees, and play area. Inside,enjoy the warmth and comfort of fireside dining, a spacious fully remodeled kitchen, LVP flooring, mudroom/utility area providing abundant storage, and a true office located opposite end of the home for added privacy. New HVAC/Furnace & home is wired for a generator. Great access (almost direct from property) to trails to the Gordy Jolma Family Natural Area and Salmon Creek. A truly unique in-town gem with land, lifestyle, and long-term potential.
GPS friendly. I-5 to Exit 11, E on NE 179th St, N on Eaton Blvd, E on SE Grace Ave to home.
Dwelling Type: Residential
Subdivision: N/A
Year Built: 1960, County: US
GPS friendly. I-5 to Exit 11, E on NE 179th St, N on Eaton Blvd, E on SE Grace Ave to home.
Listing is courtesy of eXp Realty LLC
Sign in to your account to continue