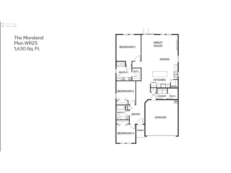
Come see D.R. Horton’s wonderful new community in Salem before it’s too late! East Park Village is just minutes away from the state capitol, and it is situated by Interstate 5, offering ease of transportation around the Greater Salem Area where you can discover shopping centers and local dining options. The marvelous Moreland is a functional one-level floor plan that has 1,630 square feet and boasts 3 bedrooms, and 2 bathrooms. The two front bedrooms are connected by a centrally located full bathroom for enhanced convenience. The laundry room is right by the kitchen and has easy access from the garage. The stylish kitchen is completed with stainless-steel appliances, a practical corner pantry, central island, quartz countertops, gas range/oven with a vent hood, inviting you to unleash your culinary creativity. Adjacent to the kitchen, the dining area is effortlessly connected to the expansive living room. This open-concept layout offers tall ceilings and large windows that fill the space with natural light, perfect for hosting. A centrally located fireplace in the great room adds style and warmth, making it the ideal spot to gather and relax. The primary bedroom offers privacy and comfort with a walk-in closet, an appealing en suite bathroom with a double vanity. Receive a closing cost credit with use of builder’s preferred lender, reach out for more information. Sales office hours are 10:00am – 5:30pm daily. Be a part of this wonderful community at East Park Village! Photos are representative of plan only and finishes may vary as built.
Model office: 113 Greencrest Street NE, Salem OR 97301
Dwelling Type: Residential
Subdivision: N/A
Year Built: 2025, County: US
Model office: 113 Greencrest Street NE, Salem OR 97301
Listing is courtesy of D. R. Horton, Inc Portland