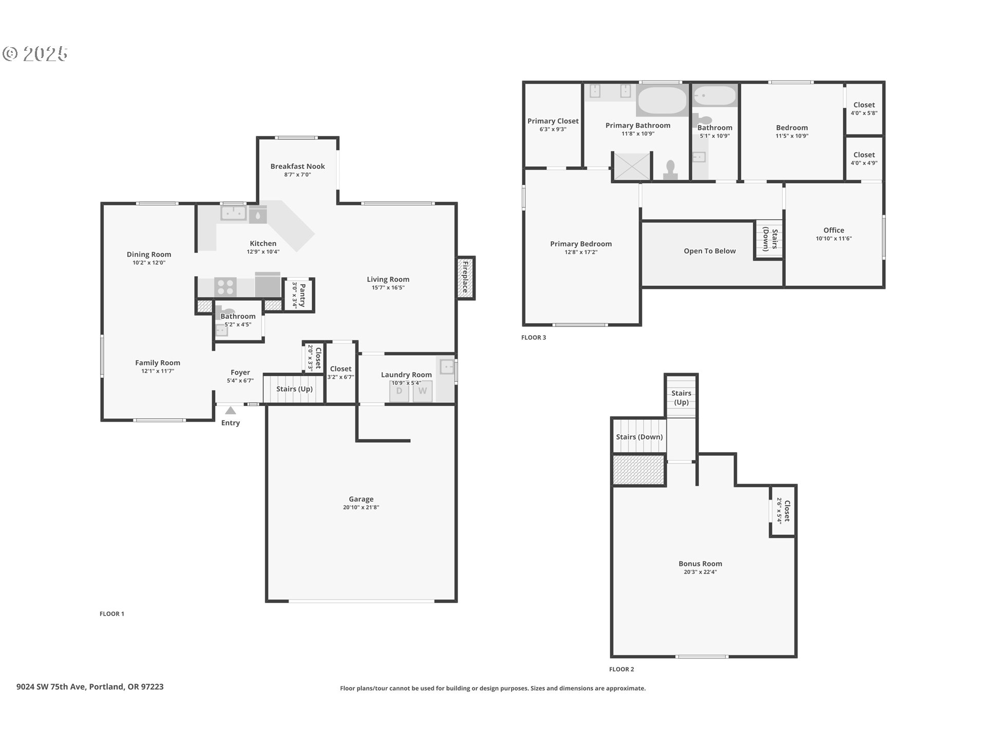
Meticulously maintained corner lot in unincorporated Washington County- Welcome Home! This inviting 4 BD / 2.5 BA home is designed for comfort and connection, offering over 2,300 sqft of well-appointed living space. Step inside to find tall ceilings, refinished oak floors, and a cozy gas fireplace that set the stage for everyday life and special gatherings. The open-concept kitchen has stainless steel appliances, convection range, and granite custom countertops, and flows seamlessly into the dining and living areas. Upstairs, you’ll find 3 generous bedrooms and a large flexible bonus room perfect for your additional needs- studio space, extra bedroom, home office, you name it! Beautiful sunsets from second floor bonus room. Second floor bonus room is large enough for a pool table, ping pong table or exercise equipment and still have a living room and family room on the first floor! Master ensuite has an en suite bath with jetted jacuzzi tub and large walk-in closet, and the private fenced yard with mature cherry tree is ready for kids, pets, and summer barbecues. Finished two-car garage has taller ceilings too, and provides plenty of storage. Located in Metzger, enjoy close proximity to parks, Metzger/Tigard schools, shopping, and transit, all with lower property taxes too. A wonderful place to put down roots and grow! Reach out to schedule your private tour today.
SW 75th Ave and Taylors Ferry Rd
Dwelling Type: Residential
Subdivision: METZGER
Year Built: 2000, County: US
SW 75th Ave and Taylors Ferry Rd
Listing is courtesy of Works Real Estate