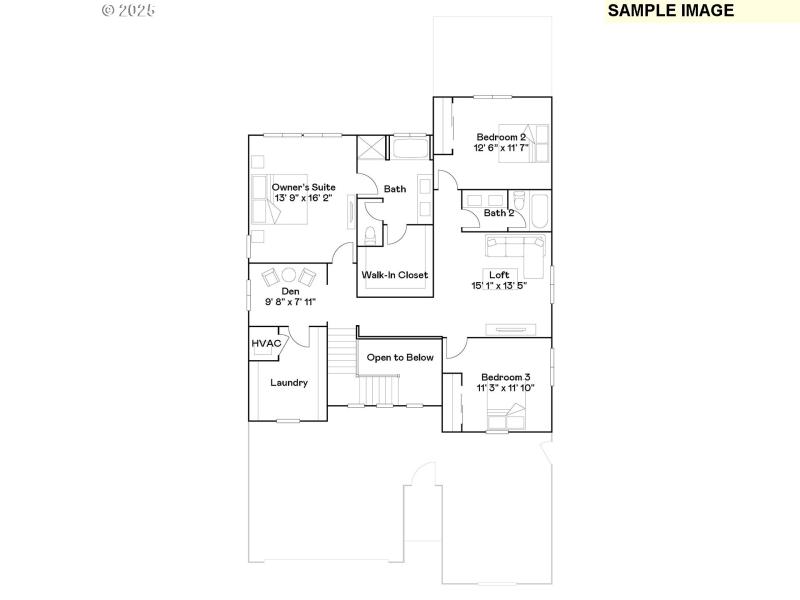
The Bainbridge floor plan offers space for multigenerational living. On the main floor with its own separate entrance, a suite with bedroom, bathroom and kitchenette. On the main floor has contemporary open floor plan with kitchen, dining, living and powder room spaces. Upstairs there is Owner’s suite with walk-in closet, loft area, den and two other spacious bedrooms. This home includes a refrigerator, washer/dryer, central air, and window blinds! Renderings and sample photos are artist conceptions only. Photos are of similar or model home so features and finishes will vary. Taxes not yet assessed. At Autumn Sunrise community enjoy walking trails that wind through the community, as well as a park with open fields, and shopping nearby. Incentives available with the use of our preferred lender! Homesite # 314, move-in ready!
East on Norwood, South on 89th Ave to Vermillion Drive.
Dwelling Type: Residential
Subdivision: AUTUMN SUNRISE
Year Built: 2025, County: US
East on Norwood, South on 89th Ave to Vermillion Drive.
Listing is courtesy of Lennar Sales Corp
Sign in to your account to continue