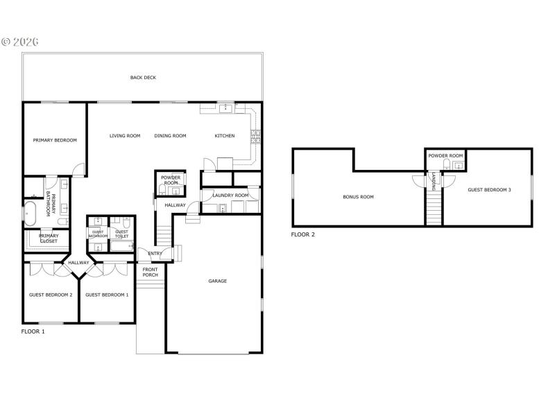
Spacious open-concept home designed for comfort and functionality. The main living area features a dedicated 20-amp circuit for an electric fireplace and flows seamlessly to double sliding glass doors that open onto a generous 520 sq ft deck—wired for a hot tub or swim spa—perfect for entertaining while enjoying golf course views.The kitchen is thoughtfully designed with Whirlpool appliances, a walk-in pantry, and soft-close five-piece drawer front cabinetry, offering both style and ample storage. Gas appliances and a high-efficiency 95% furnace provide year-round comfort and energy savings.The primary suite offers a true retreat with a spa-inspired bathroom featuring a walk-in shower and soaking tub. Additional living space upstairs includes two versatile bonus rooms with a convenient half bath and a separate entrance from the garage—ideal for guests, multi-generational living, or a private home office setup.Additional highlights include generator-ready capability, an option for a heated garage, and quality finishes throughout. This home blends modern efficiency with flexible living spaces in a desirable golf course setting.
Heading S on HWY 1010 Business, Turn L on Lewis and Clark Rd, property on L.
Dwelling Type: Residential
Subdivision: N/A
Year Built: 2023, County: US
Heading S on HWY 1010 Business, Turn L on Lewis and Clark Rd, property on L.
Listing is courtesy of Windermere Realty Trust
Sign in to your account to continue