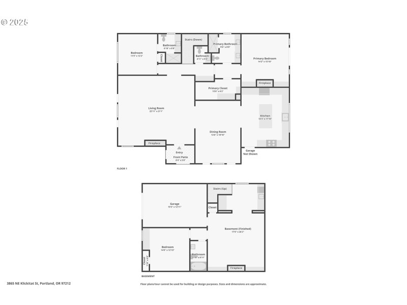
Discover this stunning Mediterranean-style home in the heart of Beaumont-Wilshire. Built in 1927, this iconic residence blends timeless character with thoughtful modern updates. With 2,765 sq ft of living space on a large corner lot (6,098 sq ft), it offers generous room to live, entertain, and enjoy. Step inside to soaring high ceilings, rich hardwood floors, and abundant natural light. The living room features a graceful fireplace and flows seamlessly into a spacious formal dining room — perfect for entertaining. The kitchen shines with quartzite countertops, a large island, free-standing Viking range, built-in appliances, and an excellent connection to the outdoor living spaces. With a total of 3 bedrooms (2 on the main floor) and 3 and 1 half updated baths, this gorgeous home provides flexibility, comfort and Sonos sound system on the primary floor. The main floor primary suite is a luxurious retreat with refined finishes. A beautifully finished basement offers a 3rd bedroom with ensuite bathroom and a spacious bonus living area — ideal for a media room, home office, or gym. Outside, the backyard has been significantly transformed with sustainability and beauty in mind: grass has been removed and replaced with a naturalized, eco-conscious landscape. A new retaining wall and expanded yard create a larger, more usable outdoor space. The inviting pergola offers a perfect spot to relax, dine, or entertain under the open sky. Additional features include central air conditioning, forced-air heating, tile roof, insulated attic with 475 square feet of storage and a one-car attached garage with extra driveway parking. Located just blocks from Alameda Elementary, Beaumont Middle, and Grant High, with easy access to neighborhood parks, cafés, and shops. This is a rare opportunity to own a signature piece of Portland’s architectural history — updated for modern living and outdoor enjoyment. [Home Energy Score = 5. HES Report at https://rpt.greenbuildingregistry.com/hes/OR10012892]
ALAMEDA/ 38TH & KLICKITAT
Dwelling Type: Residential
Subdivision: BEAUMONT - WILSHIRE
Year Built: 1927, County: US
ALAMEDA/ 38TH & KLICKITAT
Listing is courtesy of Redfin