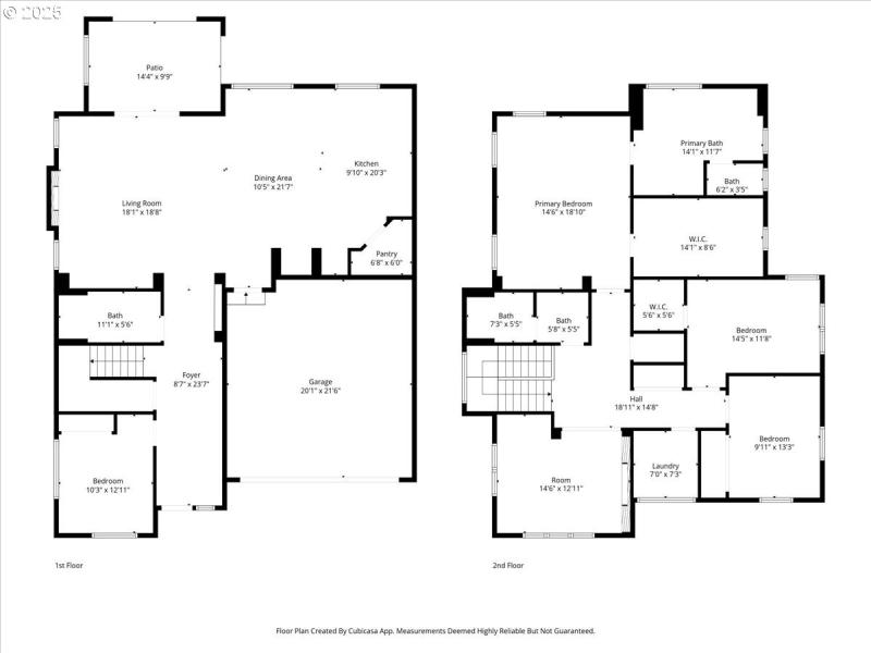
Luxury meets efficiency in the heart of Reeds Crossing! Come view this thoughtfully designed contemporary home built by ICHIJO TECHNOLOGICAL HOMES. This Earth Advantage Certified home has the highest efficiency rating with a precision wall panel system providing comfort and massive energy savings. Open concept floorplan with high ceilings, a quartz kitchen island, stainless steel appliances, piano finish soft close cabinetry with pull-down shelving, cabinet organizers, under cabinet lighting, and sleek interior doors. This must see home features 4 bedrooms plus an upstairs bonus/family room with a modern electric fireplace, an upstairs laundry room, and a large primary bedroom with a vaulted ceiling, huge walk-in closet and 5 piece bathroom. There is a bedroom and full bathroom on the main level perfect for guests. Lots of storage in the garage as well as being wired with 240v for electric vehicle charging. Fenced backyard with large covered patio and gas stub for BBQ. Miles of trails, several parks, and a short walk to dining options and new grocery store. Concessions available! Seller is open to contributing to buyers closing costs and/or rate buydown. [Home Energy Score = 10. HES Report at https://rpt.greenbuildingregistry.com/hes/OR10209705]
Cornelius Pass Rd, West on Kinnaman, Right on 76th Ave
Dwelling Type: Residential
Subdivision: N/A
Year Built: 2022, County: US
Cornelius Pass Rd, West on Kinnaman, Right on 76th Ave
Listing is courtesy of Berkshire Hathaway HomeServices NW Real Estate
Sign in to your account to continue