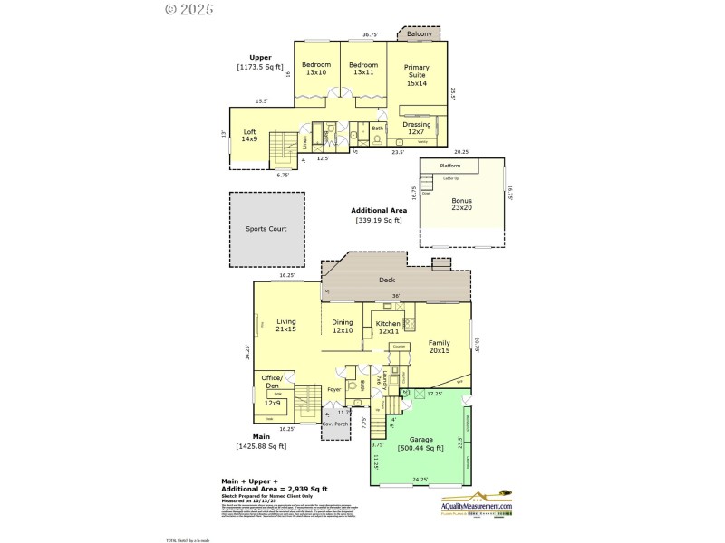
Stylish Contemporary located in coveted Red Fox Hills Neighborhood on quiet cul-de-sac bordering Tryon Creek Park, Walking Trails and near charming Hide-a-way Park and Forest Hills Elementary. Close to downtown LO. This timeless modern style features clear cedar vaulted ceilings in Living Room & Loft area. The clean contemporary lines accommodate many design styles. This is a great floor plan with a private main floor office with built-ins, vaulted living room with stone masonry fireplace adjacent to formal dining room. The kitchen with painted cabinetry, is light and bright with views of beautiful backyard and park. The outdoor setting is spectacular with privacy, expansive deck, basketball court and mature plantings. The Kitchen/Family Room is accessible to the level deck and backyard and has a second fireplace, and built-ins.A main floor laundry and separate bonus room above the garage add livability. The upper level has 3 bedrooms, a primary suite with a deck overlooking the backyard and two additional expansive bedrooms. The Primary ensuite boasts mirrored closets with ample storage and a full bath. An additional hall bathroom services the two additional bedrooms. A cozy loft/reading room overlooks the vaulted living room. Great Style and Location close to schools, town and beautiful parks and trails. A Gem.
Atwater to Boca Ratan to Rockinghorse Lane
Dwelling Type: Residential
Subdivision: Red Fox Hills
Year Built: 1974, County: US
Atwater to Boca Ratan to Rockinghorse Lane
Listing is courtesy of Eleete Real Estate
Sign in to your account to continue