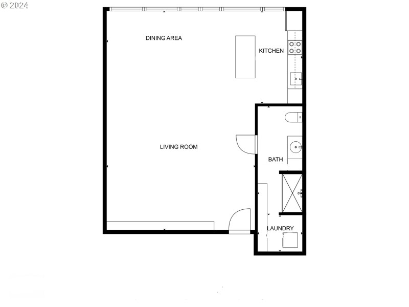
Exceptional unit in the Metropolitan Condominiums. This third floor loft offers a full wall of windows overlooking Tanner Springs Park, and providing views of the Fremont Bridge and architecture of the North Pearl. Hardwood floors, electric blinds, built-in Murphy bed with storage, Asko washer & dryer, and new HVAC. This special unit is zoned for live/work. Unit also comes with deeded parking and storage. Condo can be sold furnished. Metropolitan offers unparalleled amenities including 24hr concierge, guest suites, gym, conference room, library, rooftop deck, indoor/outdoor fireplaces.
1022 NW Marshall. Lockbox at 1001 NW Lovejoy.
Dwelling Type: Residential
Subdivision: Pearl / Metropolitan
Year Built: 2006, County: US
1022 NW Marshall. Lockbox at 1001 NW Lovejoy.
Listing is courtesy of Realty Portland