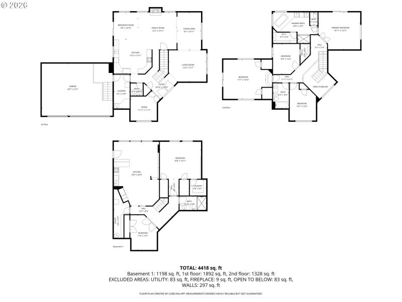
Sellers are offering a buyer credit with an acceptable offer — applicable toward interest rate buydowns and/or other prepaids and costs as allowed by lender. Inquire with the listing agent for details.This custom home on a spacious 0.23-acre corner lot in desirable Camas features a brand-new exterior color palette, an improved price, and a move-in-ready finish that's hard to match at this level. The fully finished lower level is configured as a true ADU — two bedrooms, full kitchen, living room, separate laundry, private entrance, and dedicated parking — ideal for multi-generational living, long-term guests, or potential rental income. Upstairs, the main level showcases Brazilian cherry hardwood floors, custom alder cabinetry, quartz countertops, and a generous island kitchen built for both everyday living and elevated entertaining. Brand-new bedroom carpet, a large balcony off the bonus room or fifth bedroom, three-zone heating and cooling, and RV parking round out the package.Ideally located near Prune Hill Elementary, downtown Camas, and major commuter routes — this one checks every box.
Brady Rd to NW 16th Ave (R) to NW Ogden St (L) to corner of NW 17th and NW Ogden St
Dwelling Type: Residential
Subdivision: DEER CREEK
Year Built: 2003, County: US
Brady Rd to NW 16th Ave (R) to NW Ogden St (L) to corner of NW 17th and NW Ogden St
Listing is courtesy of Cascade Hasson Sotheby's International Realty
Sign in to your account to continue