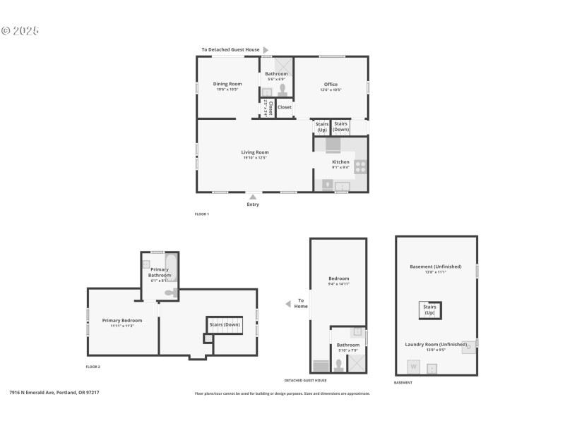
Welcome to this delightful Cape Cod in the heart of Kenton. Nestled on a quiet, tree-lined greenway just a block from Peninsular Elementary, this move-in ready home instantly feels inviting. Sunlight filters in through mature trees, filling the space with natural brightness throughout the day. One of this home’s most impressive features is the fully renovated detached studio. Brightened by a skylight and complete with a full bath and Murphy bed, it flexibly serves as a guest suite, office, or creative studio—an incredible bonus. Inside, wood floors flow seamlessly across the main level, where the thoughtfully updated kitchen with butcher block countertops opens to the living and dining area. Two generously sized bedrooms anchor the first floor, while the entire upstairs is dedicated to the primary suite. There, you’ll find a full bath and a spacious dressing area. The fenced backyard with two storage sheds feels private and is perfect for letting your dog roam freely or enjoying evenings under the covered patio. Downstairs, the basement provides convenient laundry and storage. You'll love being within walking distance to restaurants and shops on Denver Ave, as well as the incredible Oregon Center for Contemporary Art. It's the perfect balance of peaceful residential living and cultural connection. Lender incentives available when using Seller’s preferred lender. [Home Energy Score = 2. HES Report at https://rpt.greenbuildingregistry.com/hes/OR10202309]
North of Lombard on Emerald
Dwelling Type: Residential
Subdivision: KENTON
Year Built: 1926, County: US
North of Lombard on Emerald
Listing is courtesy of Redfin