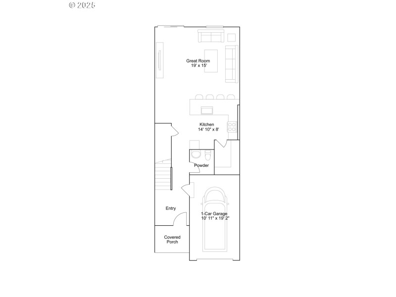
NEW PRICE! Welcome to Riverwood Crossing by Lennar. This Move-In Ready Reagan plan presents a modern two-story paired design with an open-concept first floor that unites the kitchen, dining, and living areas, ideal for both everyday living and entertaining. Upstairs, a versatile loft separates two secondary bedrooms from the private primary suite, which includes a full bathroom with dual vanities and a walk-in closet. Interior finishes include quartz countertops, Shaker-style cabinets, and LVP flooring in the kitchen and bathrooms, plus fencing, landscaping, and sprinkler irrigation for added convenience. This home also includes central air conditioning, a refrigerator, washer and dryer, and blinds—all at no extra cost! Riverwood Crossing is in close proximity to Gibson Hill Park, Linn-Benton Community College, Golf Club of Oregon, and historic downtown Albany, with Oregon State University just 20 minutes away. Homesite #26. Incentives available with the use of our preferred lender!
North Albany Rd to Gibson Hill Rd, South on Laura Vista Dr NW, Home is on the Right
Dwelling Type: Residential
Subdivision: RIVERWOOD CROSSING
Year Built: 2025, County: US
North Albany Rd to Gibson Hill Rd, South on Laura Vista Dr NW, Home is on the Right
Listing is courtesy of Lennar Sales Corp
Sign in to your account to continue