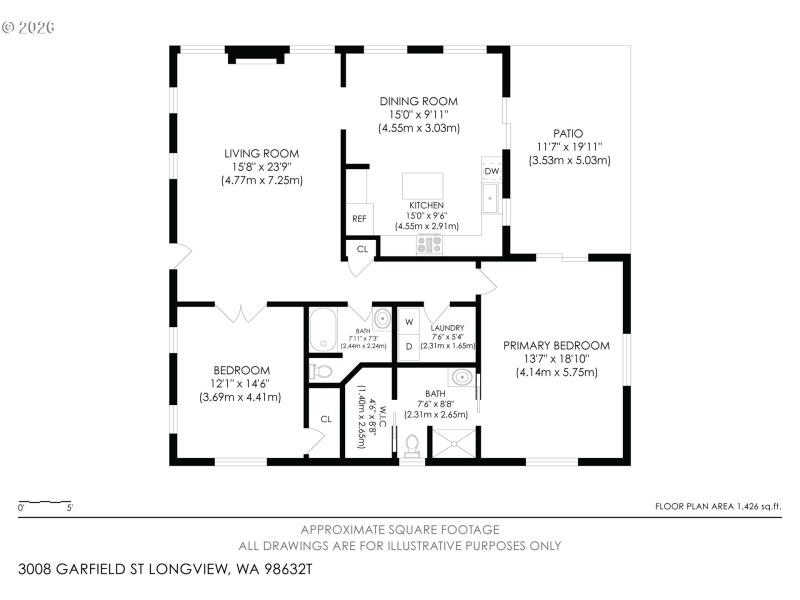
Marketing RemarksCharming and thoughtfully updated 2-bedroom, 2-bath home in the desirable Olympic area, blending timeless character with modern comfort. A welcoming covered front porch invites you in, setting the tone for the light-filled interior featuring beautiful hardwood floors, soft neutral tones, and classic architectural details throughout. The spacious living room showcases a distinctive, decorative fireplace, abundant windows, and an open, airy feel ideal for both relaxing and entertaining. The updated kitchen offers crisp white cabinetry, warm tile countertops, stainless appliances, and a functional island, with easy access to the dining area and private covered patio—perfect for year-round enjoyment. Generous bedrooms include a spacious primary suite with ensuite bath, vaulted ceilings, and direct outdoor access. The fully fenced yard features mature landscaping, garden space, and a detached outbuilding for added storage or hobby use. The garage even has its own hot water tank for warm car washes! A rare blend of charm, space, and livability in a sought-after neighborhood close to local amenities.
GPS is accurate. From Nichols Blvd, go S on Washington Way; turn R on 30th; turn L on Garfield St
Dwelling Type: Residential
Subdivision: N/A
Year Built: 1997, County: US
GPS is accurate. From Nichols Blvd, go S on Washington Way; turn R on 30th; turn L on Garfield St
Listing is courtesy of Realty ONE Group Pacifica
Sign in to your account to continue