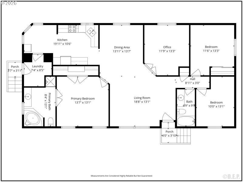
Over 6 acres with a shop, carport and manufactured home plus potential for timber value. Brand new interior and exterior paint. Three bedroom, two bathroom home offers open living/dining space and nice kitchen space. Office gives you additional space for a work from home situation/room for guest or family as well. Property on a shared well.
Hwy 30 to Tide Creek, about 2.4 miles up to property on left
Dwelling Type: Residential
Subdivision: N/A
Year Built: 1996, County: US
Hwy 30 to Tide Creek, about 2.4 miles up to property on left
Listing is courtesy of RE/MAX Powerpros
Sign in to your account to continue