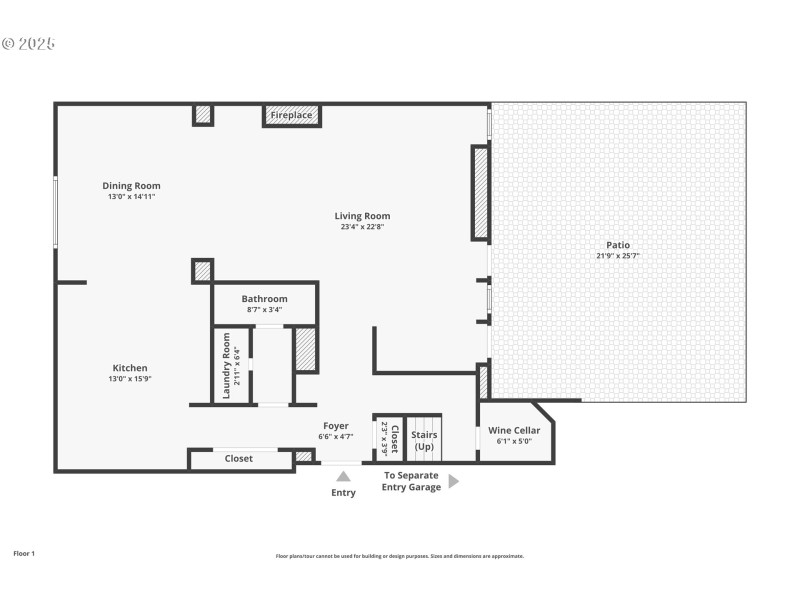
Linnton School Place is truly a one-of-a-kind condo building nestled in NW Portland you just have to see for yourself! This 1920s era school was converted into 11 condos in the early 1990s, each with its own character & charm. This lovely unit boasts 2 large bedrooms + 2.5 bathrooms with 2174 SqFt, all wrapped in luxurious finishes & amazing views! Perched just above the Willamette River between St Johns Bridge & Sauvie Island, this unit features soaring ceilings, exposed brick, high-end finishes, engineered hardwood floors, and 2 large private patios + Juliet Balcony. The condo is appointed with a chef's kitchen, wine cellar, & multiple gas fireplaces. Don't miss the many built-in shelves & cabinets along with plentiful closet space throughout. Gated community with ample guest parking + attached 2-car garage. Manicured grounds with rose garden & access to Forest Park trails. 15 minutes to NW 23rd + St Johns plus charm of local Linnton restaurants + shopping. [Home Energy Score = 5. HES Report at https://rpt.greenbuildingregistry.com/hes/OR10239936]
Route 30 West from NW PDX into Linnton, Left on 112th, straight up hill to gate.
Dwelling Type: Residential
Subdivision: N/A
Year Built: 1928, County: US
Route 30 West from NW PDX into Linnton, Left on 112th, straight up hill to gate.
Listing is courtesy of The Agency Portland
Sign in to your account to continue