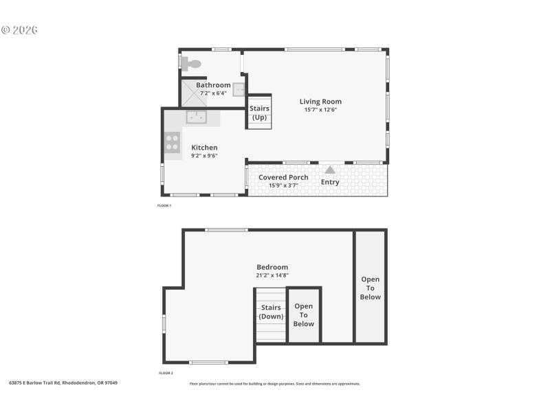
First time ever on the market, this classic 1920s detached log cabin at 63875 E Barlow Trail Rd delivers the kind of off-the-beaten-path privacy short-term rental investors and weekenders chase, with a creek and bridge adding instant storybook appeal. It feels tucked away, yet you are a quick drive to coffee and local restaurants in the Brightwood area. Inside, find a thoughtfully designed space with a cozy kitchen featuring one loft bedroom that spans the full length of the home, complemented by a convenient downstairs bathroom with a shower. Vaulted ceilings enhance the open feel, while a built-in bed maximizes comfort and utility. This cabin’s layout provides an inviting atmosphere with a wood stove, ideal for attracting guests seeking a distinctive getaway. This home is to be taken in as-is condition, cash only, possible short term seller carry or rehab. Please don't walk the property without your favorite licensed realtor!
Barlow trail RD North to 63875
Dwelling Type: Residential
Subdivision: N/A
Year Built: 1925, County: US
Barlow trail RD North to 63875
Listing is courtesy of Redfin
Sign in to your account to continue