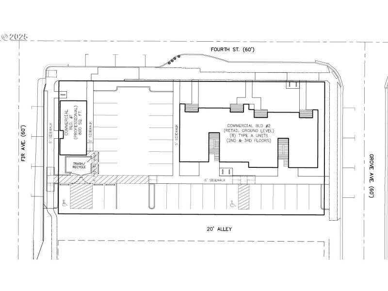
This is more than just an opportunity; this is an asset that'll keep paying out for years to come. Be an investor with these brand spanking new 8 apartments and 4-8 retail/business offices in downtown Gervais. Luxury Apartments are 1,000 sqft 9' ceilings and feature beautiful kitchens, LVP flooring, granite countertops, stainless steel appliances, 2 bedroom, 2 baths with air-conditioning, washer/dryer hookup, balcony, and storage. The ground-level 4 unit retail/offices can be split from 2,000 sq-ft to 1,000 or even smaller to rent out, could be a hair salon, nails, chiropractic office, or accountant office, bring your dream and your ideas. The parking lot is also big enough to rent out to culinary food trailers/trucks. There is also an area on the south side of the parking lot that is approved for an 800sqft commercial building thats already plumbed for water and sewer.This is a "Gold Mine" of opportunity. Minutes from I-5, between Portland and Salem. Gervais is such a great community and has grown substantially in the last few years, having its own schools, Elementary up through High School. Seller is also willing to carry a contract on this for 20 years with a sizable down payment. The projected yearly gross income is over 300k. The estimated time of completion is July. Super easy access to I-5 in Woodburn, which is smack-dab in the middle between Portland and Salem. Don't let this phenomenal opportunity pass this up.
3rd or 4th right next to City Hall.
Dwelling Type: CommercialSale
Subdivision: N/A
Year Built: 2026, County: US
3rd or 4th right next to City Hall.
Listing is courtesy of Premiere Property Group, LLC
Sign in to your account to continue