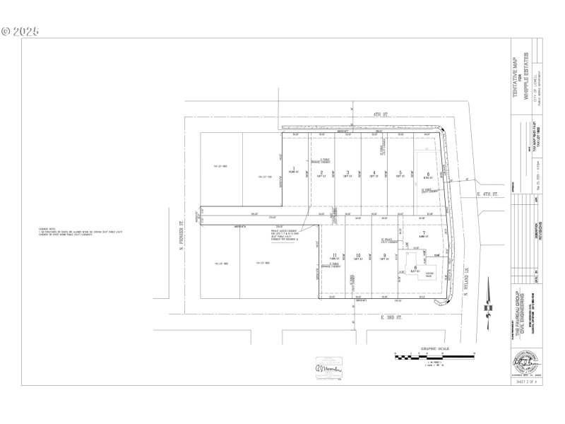
Exceptional development opportunity in Lowell, just 20 minutes from Eugene. This 2.12-acre parcel includes tentative subdivision approval with the City of Lowell for 11 total lots, offering builders and investors a major head start on a highly desirable small-scale subdivision. The property also includes an existing newly remodeled 2 bedroom home that is currently rented month-to-month, providing income during the development process. The site is largely cleared, utilities are nearby, soils are favorable, and the project aligns with Lowell’s current residential growth needs.This is an ideal opportunity for a builder or developer seeking a manageable, profitable project supported by city momentum. More information regarding pre approval packet with the City of Lowell, engineers concept plans, and city correspondence available.
in Lowell turn on E 3rd st.
Dwelling Type: Residential
Subdivision: N/A
Year Built: 1963, County: US
in Lowell turn on E 3rd st.
Listing is courtesy of Works Real Estate
Sign in to your account to continue