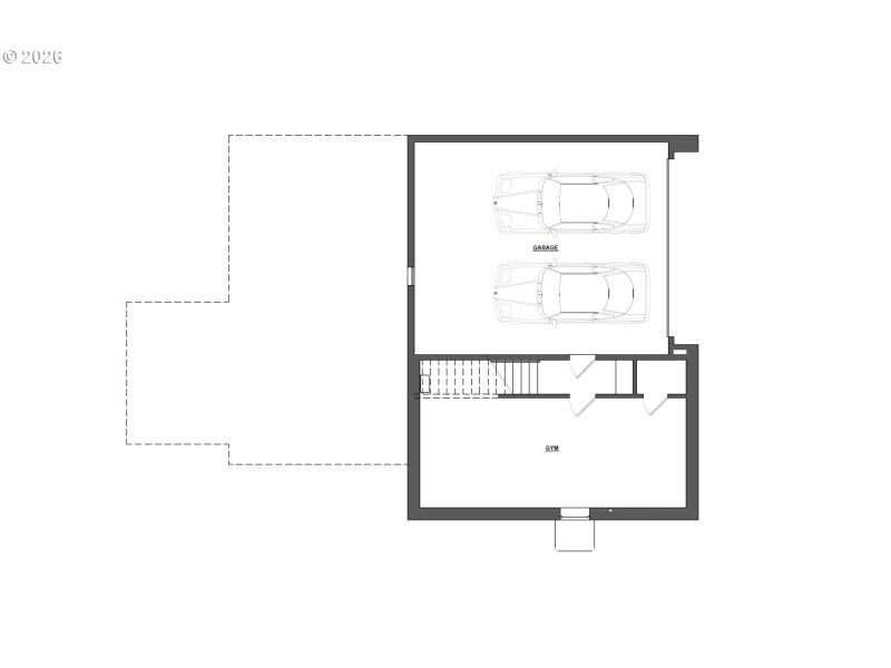
Brand new home, meticulously crafted by premier Street of Dreams luxury builder. Showcasing an exceptional NW classic design. Featuring a luxurious main-level primary suite, 3 additional bedrooms – each boasting craftsman-vaulted ceilings and walk-in closets, office/den, plus lower-level bonus/flex room, there’s plenty of room for everyone. Truly remarkable kitchen is built to impress, but also caters to everyday living. You’ll love the 10-foot quartz island, stunning 36-inch gas range, undercabinet-drawer microwave and adjacent utility room fitted for laundry, storage and functionality. Light-filled great room features towering vaults, gas fireplace, oversized dining for large gatherings, flowing to your own private, covered deck and wonderfully large, level back yard. Other features include 9 foot ceilings throughout, oversized garage with 18’x8’ door and incredible storage options. Absolutely amazing location near highly-rated schools, just a few short steps to renowned Woods Memorial Park, a half mile to Spring Garden Park and less than 1 mile to local favorite Gabriel Park. You’re also less than 1 mile Multnomah Village on dedicated sidewalks and bike paths, with easy access to I-5 and a 10 minute drive to downtown PDX or Bridgeport Village. This may be the one you’ve been waiting for. Home is nearing completion and should be ready in June. Call for a private showing today!
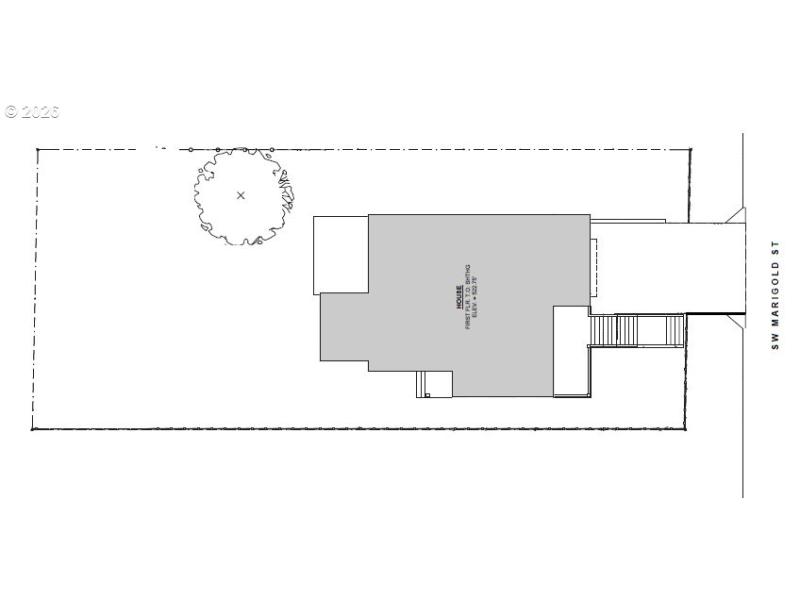
From Capitol Hwy north of I-5/99W turn east on Marigold St to homesite
Dwelling Type: Residential
Subdivision: N/A
Year Built: 2026, County: US
From Capitol Hwy north of I-5/99W turn east on Marigold St to homesite
Listing is courtesy of RE/MAX Equity Group
Sign in to your account to continue