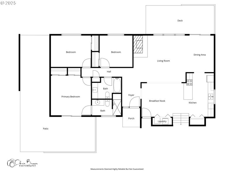
New roof to be completed this week! Welcome to this meticulously maintained, home with main level living! Enjoy the spacious and comfortable family room that is anchored by a wood-burning fireplace. A nice dining area that connects to a fantastic living space with minimal steps leading into a bonus room with a vaulted ceiling — perfect for entertaining or a dedicated media room. A functional kitchen with a pantry and all appliances are staying. The primary suite has an updated walk-in shower and an exterior door that opens onto a private patio space. The deep garage offers ample storage and includes an exterior access door. Washer & Dryer included. The exterior features are equally impressive: a sizable, fenced lot with RV parking, a beautiful back deck, perfect for entertainment, and a convenient lean-to for storage. This home is ready to move in and enjoy! The annual HOA fee of just $125 helps maintain a beautiful, shared green space for the neighborhood to enjoy. Located within easy walking distance of the home, this outdoor area is perfect for getting the kids outside, walking your dogs, hosting casual BBQs, or simply taking a relaxing stroll in the fresh air. It’s a convenient, well-kept space that adds real value to everyday living.
Strawberry Ln to Stanhelma Dr
Dwelling Type: Residential
Subdivision: N/A
Year Built: 1976, County: US
Strawberry Ln to Stanhelma Dr
Listing is courtesy of John L. Scott Sandy
Sign in to your account to continue