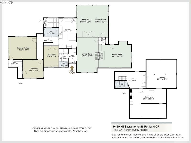
Ideally situated at the end of a quiet dead-end street, this 1943 home offers rare privacy and space in Northeast Portland’s Madison South area. Set on nearly half an acre (double lot), the property boasts a lush, beautifully designed yard—a true gardener’s paradise with multiple terraced areas and paver patios, perfect for entertaining or for peaceful solitude. Inside, the 2,474 square foot layout features 3 bedrooms and 2.1 bathrooms, along with distinct living areas including a formal living room, a spacious family room/dining room combo, and a versatile and generously-sized bonus room. The laundry is located at the foot of the stairs along with ample spaces for storage or another living area. While the home has great bones and vintage charm, it’s ready for your personal touch and updates to make it your own. Whether you're drawn to the quiet street, the expansive and artfully landscaped yard, or the opportunity to customize a classic Portland home, this property offers a unique blend of character, space, and potential. This home may also be perfect for shared living and/or an adult foster care home if a few modifications could be made (check with SA for details).
NE Halsey St to NE 92nd Ave to NE Sacramento St
Dwelling Type: Residential
Subdivision: MADISON SOUTH
Year Built: 1943, County: US
NE Halsey St to NE 92nd Ave to NE Sacramento St
Listing is courtesy of Windermere Heritage
Sign in to your account to continue