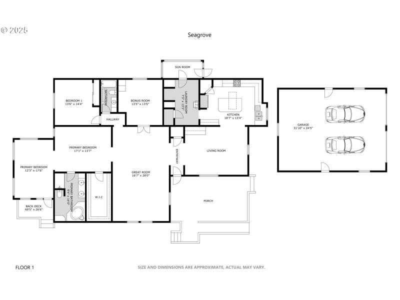
Welcome to your dream home in the gated community of Seagrove, located just across the street from beautiful beach access on the stunning Oregon Coast! This spacious 3-bedroom, 2-bath residence offers 2,011 square feet of potential waiting for your personal touch. Enjoy the expansive master suite with a walk-in closet and private bath, providing the perfect retreat. The versatile bonus room leads to a covered porch, ideal for unwinding and enjoying your serene private yard. With generous living space in every room, including a large kitchen equipped with abundant storage options and a convenient closet pantry, this home is perfect for entertaining. The laundry room features a sink and additional shelving for convenience. This property also boasts an extra deep detached 2-car garage, offering ample space for vehicles and storage. Repairs are needed, presenting a fantastic opportunity for sweat equity. Seagrove's amenities include a seasonal outdoor pool, tennis courts, and scenic walking trails—all just moments from the breathtaking Oregon coastline. Embrace this exceptional lifestyle today!
Hwy 101 to Gleneden Beach, east aonto Seagrove Dr, left onto Seagrove Loop, home on left
Dwelling Type: Residential
Subdivision: Seagrove
Year Built: 1995, County: US
Hwy 101 to Gleneden Beach, east aonto Seagrove Dr, left onto Seagrove Loop, home on left
Listing is courtesy of Beachside Realty
Sign in to your account to continue