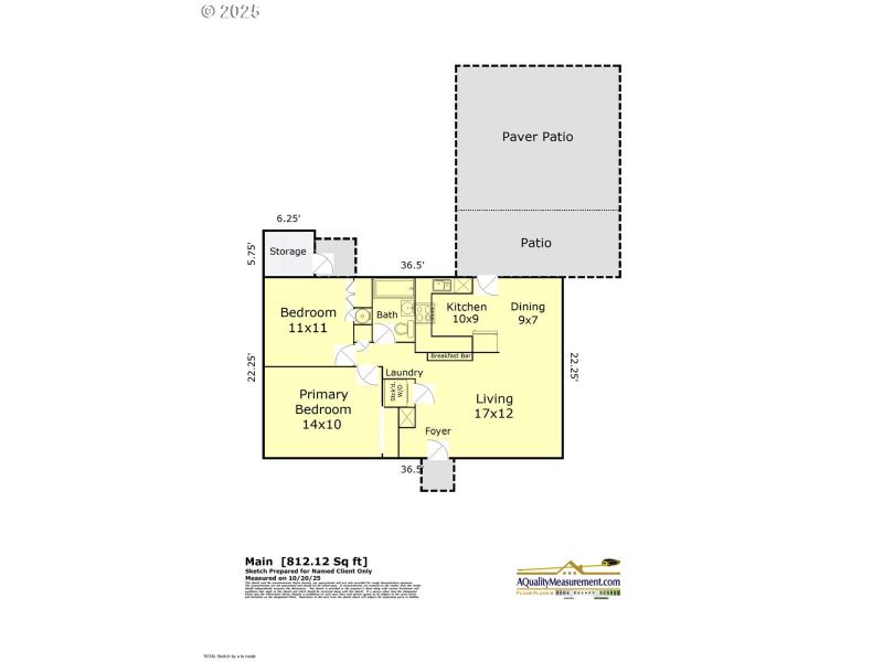
This remodeled home in Portsmouth, North Portland features an open kitchen with a large passthrough to the living and dining areas, maximizing light and space without sacrificing storage. Contemporary wood vinyl flooring and tile complement any design style. The washer and dryer are enclosed in a closet, and the kitchen includes butcher block counters, shaker cabinets, and built-in appliances. The bathroom has updated flooring, cabinetry and tiling, while new vinyl windows and fiber cement siding (with stainless steel fasteners between the joints) offer durability and low maintenance. There is gas to the home but today runs on a ductless heating and cooling unit in addition to individual bedroom heating and electrical appliances. Impressive home energy score is 7 with attic insulation of R35. The large, private backyard features a patio, firepit, and shed for storage. Located blocks from New Seasons Market, favorite local parks and close to the beloved St. Johns downtown and University of Portland, this well-maintained home stands out for both its charm and convenience. [Home Energy Score = 7. HES Report at https://rpt.greenbuildingregistry.com/hes/OR10242488]
lombard then s on Portsmouth and east on Newark then s on Hodge
Dwelling Type: Residential
Subdivision: PORTSMOUTH NEIGHBORHOOD
Year Built: 1954, County: US
lombard then s on Portsmouth and east on Newark then s on Hodge
Listing is courtesy of Windermere Realty Trust