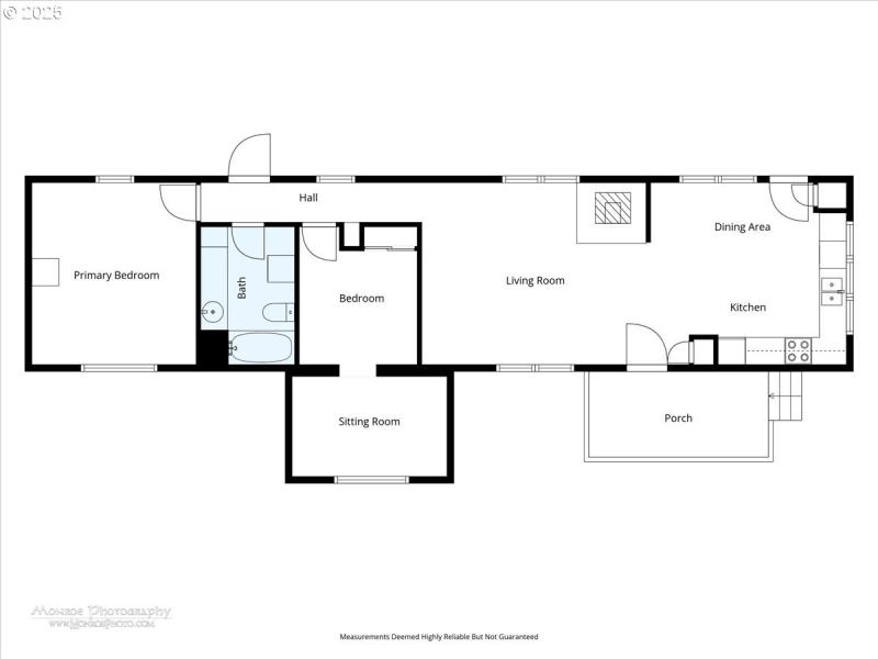
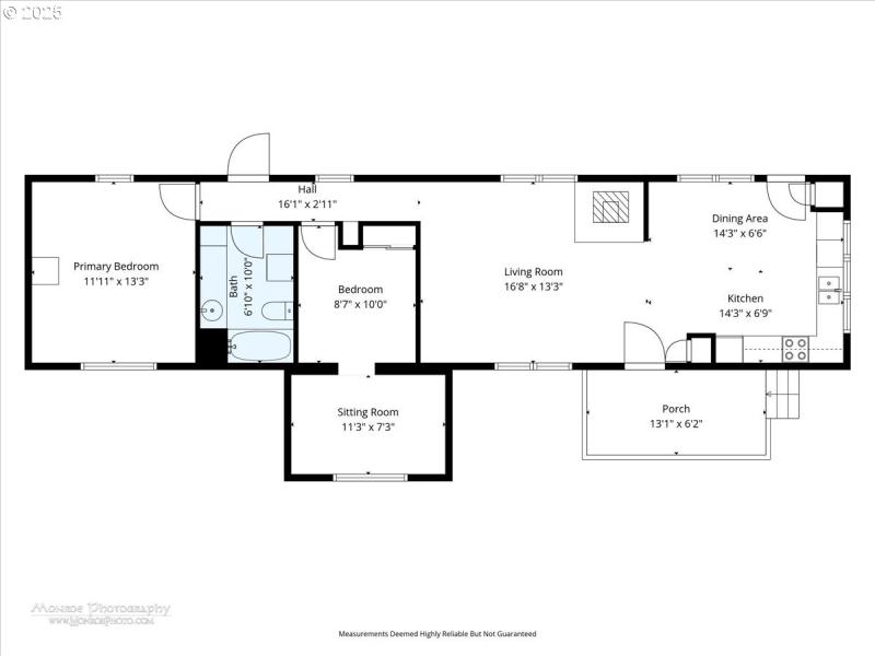
Welcome to Pine Ridge Park, a quiet all-ages manufactured home community on the edge of town, offering peace and convenience just minutes from shopping, restaurants, and public transit. This beautifully refreshed single-wide home features fresh paint inside and out, a thoughtfully updated kitchen with stainless steel appliances, and durable LVP flooring throughout.The home offers 2 bedrooms and 1 bath, along with an inviting wood-burning stove to keep you cozy. An addition provides a versatile flex/office space, perfect for working from home or hobbies. Enjoy relaxing on the covered front deck, the spacious yard, and take advantage of off-street parking plus a large powered workshop for storage or projects.Another bonus: no property taxes! Park rent is $975/month. Ask your agent about financing options available for manufactured homes on leased land. Don’t miss the chance to make this move-in-ready home yours in the welcoming community of Pine Ridge Park.
Farmington Road to 195th
Dwelling Type: Residential
Subdivision: Pine Ridge Park
Year Built: 1972, County: US
Farmington Road to 195th
Listing is courtesy of John L. Scott Market Center