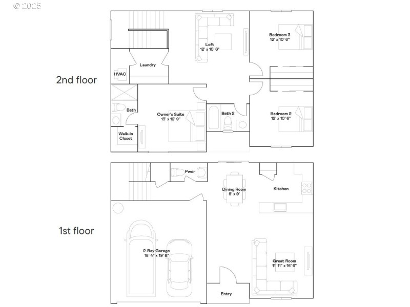
This new construction home is located in Meadowview, a serene community surrounded by protected wetlands and within walking distance of local parks and trails, with convenient access to Fern Ridge Lake, grocery stores, schools, and restaurants. The Slayton plan features a modern two-story layout with an open-concept main level that connects the kitchen, dining, and living areas for effortless entertaining. Upstairs, a versatile loft sits at the center of four bedrooms, including a spacious primary suite with an en-suite bath and walk-in closet. Interior highlights include quartz countertops, shaker-style cabinets, and LVP flooring in the kitchen and bathrooms, along with front yard landscaping. This home also includes central air conditioning, a refrigerator, washer and dryer, and blinds—all at no extra cost! Homesite #77. Expected completion: March 2026. Rendering is artist conception only. Photos are of a similar home, features and finishes will vary.
N. Terry to West on Royal Ave, Right on Legacy St, Home is on your left
Dwelling Type: Residential
Subdivision: MEADOWVIEW PARK
Year Built: 2026, County: US
N. Terry to West on Royal Ave, Right on Legacy St, Home is on your left
Listing is courtesy of Lennar Sales Corp
Sign in to your account to continue