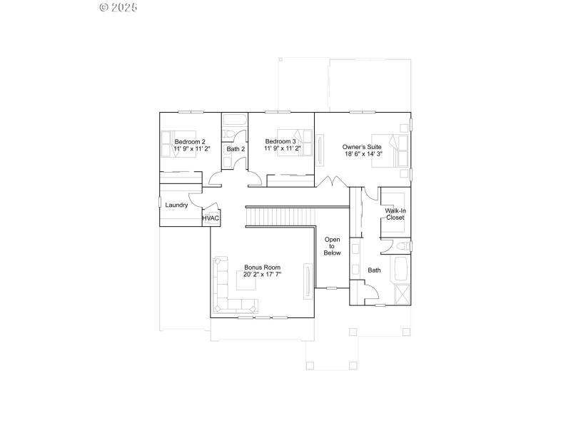
This brand new home is located in a quiet community just minutes from PDX and within the highly desirable Camas School District,backing to greenspace, close to Lacamas Lake, Camas Meadows Golf Course, and shopping and dining in downtown Camas. The Rochester plan features a den off the foyer and a spacious open-concept design where the kitchen, dining, and living areas connect to a covered patio. A secondary bedroom is tucked near the main living area, while upstairs a versatile bonus room is located near three additional bedrooms, including the primary suite with a private bath featuring quartz countertops, a separate tub and shower with tile surrounds, and a clear frameless glass shower enclosure. Interior highlights include quartz countertops in the kitchen and baths, shaker-style cabinets, a picket-style tile backsplash in the kitchen, LVP flooring in the kitchen and entry, LVT flooring in the baths and laundry, and matte black fixtures and hardware throughout. Wooden shelving is included in closets and pantry, with landscaping and fencing also provided. A spacious three-car garage adds extra storage and convenience. This home also includes central heating and cooling, a refrigerator, washer and dryer, and blinds—all at no extra cost! Located on homesite 56, this home is estimated to be complete July 2026. Incentives available with the use of our preferred lender!HS#56
192nd AV north to Goodwin to Green Mtn after Camas Meadows Golf Course
Dwelling Type: Residential
Subdivision: CAMAS HEIGHTS
Year Built: 2026, County: US
192nd AV north to Goodwin to Green Mtn after Camas Meadows Golf Course
Listing is courtesy of Lennar Sales Corp
Sign in to your account to continue