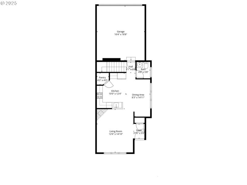
This beautiful end-unit townhome is a true gem, perfectly situated overlooking a peaceful courtyard in one of Hillsboro’s most sought-after neighborhoods. The spacious main level offers a comfortable, open layout that’s ideal for both relaxing and entertaining. Upstairs, the loft area provides a versatile second living space—perfect for a home office, media room, or play area. The primary suite features a walk-in closet and French doors leading to an ensuite bath complete with double sinks and a soaking tub. All appliances—including washer, dryer, and refrigerator—are included, making this home move-in ready with a new water heater! Enjoy the resort-style amenities Arbor Roses is known for: a pool, hot tub, gym, party room, playground, and internet included in the HOA. Nestled along the scenic Jackson Bottom Wetlands, this beautiful walking neighborhood offers the perfect blend of nature, community, and convenience. Existing warranty to 2/26/2026
SE TV HWY, S on SE 11th Ave, L on SE Bianca to property on the left.
Dwelling Type: Residential
Subdivision: N/A
Year Built: 2006, County: US
SE TV HWY, S on SE 11th Ave, L on SE Bianca to property on the left.
Listing is courtesy of John L. Scott
Sign in to your account to continue