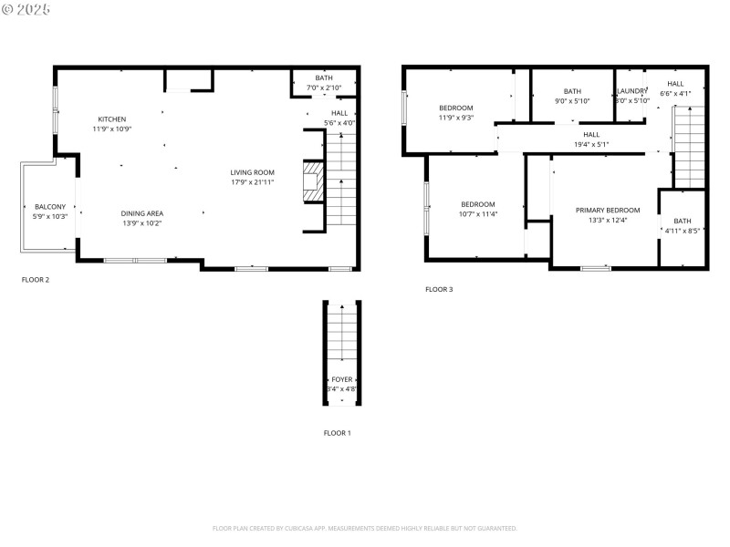
Bright and spacious corner-unit condo spanning two levels with an open-concept layout and private balcony overlooking a peaceful, tree-lined common area. The updated kitchen features granite counters, an eating bar, pantry, and newer stainless appliances—including gas stove, refrigerator, microwave, and disposal. All 3 generous sized bedrooms are located upstairs including a primary suite with its own bathroom, an additional full bathroom in the hallway including an upstairs laundry which includes a newer full-size washer and dryer. Detached garage with opener plus assigned parking.HOA covers exterior maintenance, landscaping, garbage, water, sewer, heated pool, and fitness room. Close to YMCA, parks, top schools, shopping, dining, and public transit, with quick access to Hwy 99E—ideal for homeowners or investors.Note: Construction on exterior is currently underway (new roofs, windows, doors, decks, siding) and will be fully paid at closing by the SELLER for you!! Act fast on this incredible opportunity on one of the largest floorplans available in this complex before its gone. No Rent cap making these units able to be rented out long term only.
99W from Portland, Woodhaven Condos on East side of 99 just before Sunset
Dwelling Type: Residential
Subdivision: WOODHAVEN CROSSING CONDO
Year Built: 2006, County: US
99W from Portland, Woodhaven Condos on East side of 99 just before Sunset
Listing is courtesy of Real Broker
Sign in to your account to continue