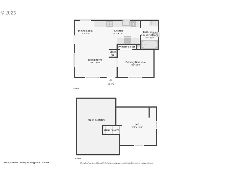
Enjoy effortless living in this newer floating home on the Multnomah Channel. Designed for easy maintenance with a durable metal roof and fiber cement siding, this home lets you spend more time on the water. Inside, luxury plank vinyl floors, soaring ceilings, and abundant natural light create a warm, inviting atmosphere. The open layout seamlessly connects living, dining, and kitchen areas—perfect for entertaining. The modern kitchen features quartz countertops, sleek white cabinetry, and stainless steel appliances. Upstairs, a versatile loft with dormer and closet offers space for guests or a home office. Outside, relax on your covered deck with storage shed and step directly onto your boat. Gated parking included—come experience this private riverfront oasis!
From HWY 30 turn at Johnsons Landing Rd. Stay straight at bend in road.
Dwelling Type: Residential
Subdivision: N/A
Year Built: 2023, County: US
From HWY 30 turn at Johnsons Landing Rd. Stay straight at bend in road.
Listing is courtesy of Redfin
Sign in to your account to continue