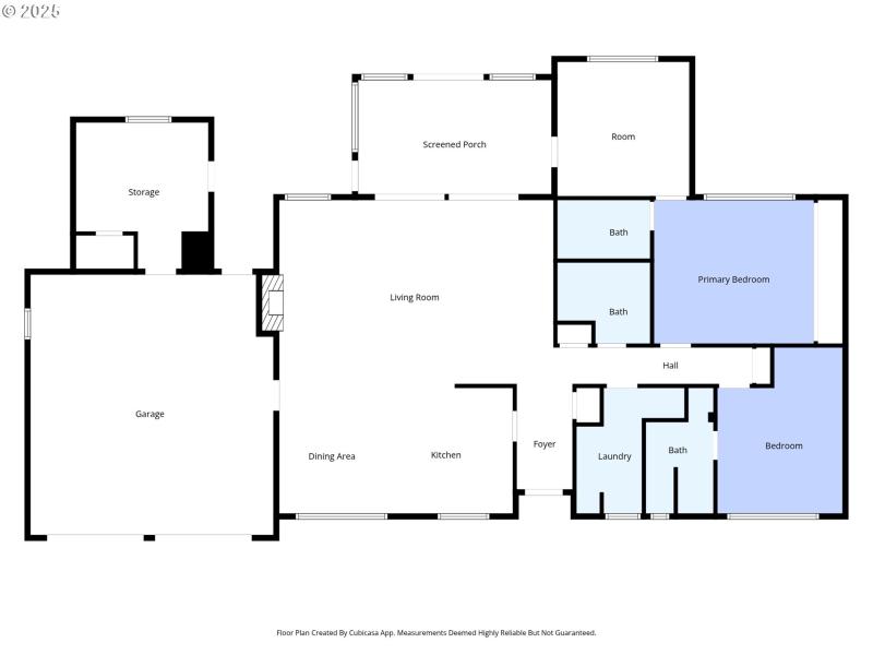
Charming home perfectly situated on the 5th hole of the Gresham Golf Course on a cul-de-sac, with lovely views of Mt. Hood! This 3-bedroom, 3-bath home offers a versatile 3rd Bed/den/flex space off the primary suite with vaulted ceiling and a skylight that leads to a sunroom with plenty of natural light, perfect for enjoying your morning coffee. Two bedrooms feature full bathrooms for added comfort and privacy, including a updated walk-in shower in the second primary bedroom. The kitchen features updated counters with an undermount sink and stainless steel appliances, creating a wonderful space for cooking and entertaining. Off the kitchen, a small storage room with built-in shelving keeps everything organized. The living room includes convenient in-floor outlets, and the sunroom is located just off the living area, ideal for relaxing or entertaining. Enjoy the beautifully landscaped backyard that showcases thoughtful walking paths that leads to four fruit trees, including Macintosh apple, red plum, purple plum, and two varieties of pears as well as two weeping cedars, lavender, Russian sage, and other charming ground covers. Additionally there is a 24X8 garden shed and 12x8 workshop that includes power and access from the attached 2-car garage. The front yard features a variety of perennial flowers, including lilacs, coral bells, and lilies, creating stunning spring curb appeal. Further highlights include 24 owned solar panels that contribute to a VERY LOW monthly electric bill. All appliances including the furnace and hot water heater have been updated beginning in 2018. Don’t miss the opportunity to own this beautiful, move-in ready property with both style and functionality in a premier golf course location. 3rd bedroom may be non-conforming.
From Hogan turn onto NE 23rd St. Right on NE View Ct.
Dwelling Type: Residential
Subdivision: N/A
Year Built: 1972, County: US
From Hogan turn onto NE 23rd St. Right on NE View Ct.
Listing is courtesy of John L. Scott Portland Metro
Sign in to your account to continue