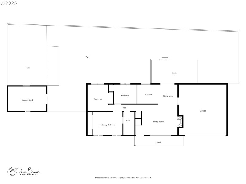
Tucked away at the end of a peaceful cul-de-sac in outer SE Portland, this thoughtfully refreshed one-level home blends comfort, flexibility, and future potential. Step inside to discover brand-new flooring and a beautifully updated kitchen (2025) designed to elevate everyday living. The remodeled bathroom adds a fresh, modern touch, while the energy-efficient heat pump keeps you comfortable year-round. Cozy evenings await by the wood-burning fireplace—complete with a lined chimney and ready for your insert of choice.Natural light fills the inviting layout, creating warm, welcoming spaces perfect for both relaxing and entertaining. Outside, the possibilities truly expand. A spacious 2+ car garage, dedicated RV parking, a 10x16 Tuff Shed, and a covered wood shed provide incredible versatility for hobbies, storage, or workspace needs.The large, fully fenced backyard—featuring a brand-new fence—offers room to garden, play, entertain, or explore future expansion. With potential for an ADU and an existing variance for chickens (buyer to perform due diligence), this property opens the door to multigenerational living, income opportunities, or a personalized urban homestead setup.Located in the Centennial School District and just minutes from shopping, parks, and recreation, this well-maintained home delivers both convenience and tranquility.If you’ve been searching for a move-in ready home with meaningful updates, generous outdoor space, and exciting potential—this is one you’ll want to see. Schedule your private showing today. [Home Energy Score = 9. HES Report at https://rpt.greenbuildingregistry.com/hes/OR10240106]
Turn south from Division onto 174th, road on the right
Dwelling Type: Residential
Subdivision: CENTENNIAL COMMUNITY ASSOC.
Year Built: 1980, County: US
Turn south from Division onto 174th, road on the right
Listing is courtesy of Berkshire Hathaway HomeServices NW Real Estate
Sign in to your account to continue