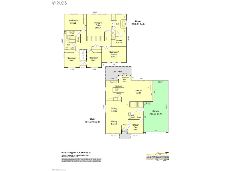
Meet your new Dream Home. This beautifully crafted Renaissance home has been remodeled to perfection. Every surface has been touched with New Kitchen/Family Room, New outdoor spaces, New fixtures and paint throughout. Great Floor Plan with 4 spacious bedrooms, Bonus or 5th Bedroom up, Den/Office on Main, Formal LR, Formal DR, Spacious New Kitchen open to family room with new fireplace. Designer wallpaper & Fixtures throughout. New $15,000 Induction Cooktop. Beautiful Community Pool and Park a short walk away. Near schools, shopping, parks and easy access to everything. The perfect West Linn location. Move-in Perfect.
Rosemont to Ireland Ln to Ridge to Coho Lane
Dwelling Type: Residential
Subdivision: ROSEMONT POINTE
Year Built: 2007, County: US
Rosemont to Ireland Ln to Ridge to Coho Lane
Listing is courtesy of Eleete Real Estate