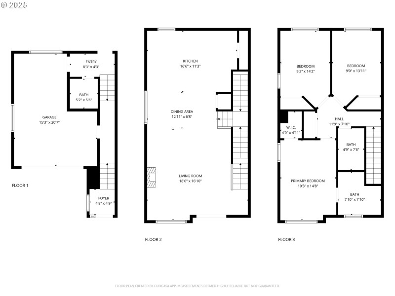
Welcome to this beautiful end-unit townhome, found in highly coveted area of Hillsboro. This home features a spacious open concept floor plan with lots of natural light. The main floor boasts of beautiful, hardwood floors and a great living area with a gas fireplace and nice built-ins. Also you will find a balcony, great for relaxing. The kitchen contains granite countertops, stainless steel appliances, tile backsplash, built-in microwave, and pantry for storage. All bedrooms have vaulted ceilings. The primary suite includes a bathroom en-suite and a walk-in closet. With an energy efficiency rating of 8, this home provides year around comfort an affordable price. Sharing only one wall, this unit provides virtually no noise from neighbors. On the lower level you will find a bonus office or guest area with a separate entrance. This great home also includes lots of storage space and an attached garage. The location is prime, minutes away from the MAX stop for easy commuting, grocery stores and outdoor/walking trails such as Quatama Nature Park. This home is situated near anything you would need, including shopping, dining, parks, and transportation. Fantastic value in a great location! [Home Energy Score = 8. HES Report at https://rpt.greenbuildingregistry.com/hes/OR10242716]
NC Cornelius Pass Rd and NW Wilkins
Dwelling Type: Residential
Subdivision: N/A
Year Built: 2007, County: US
NC Cornelius Pass Rd and NW Wilkins
Listing is courtesy of MORE Realty
Sign in to your account to continue