**FOR COMPS ONLY**
N HOLLY STREET & NW 16TH AVENUE
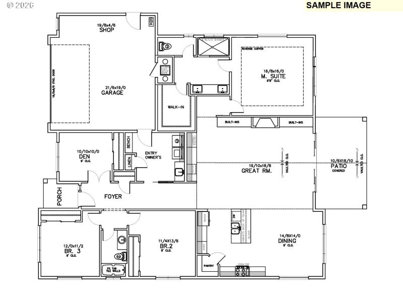
Dwelling Type: Residential
Subdivision: DAHLIA GLEN
Year Built: 2026, County: US
N HOLLY STREET & NW 16TH AVENUE
Listing is courtesy of Stone Bridge Realty, Inc
Sign in to your account to continue