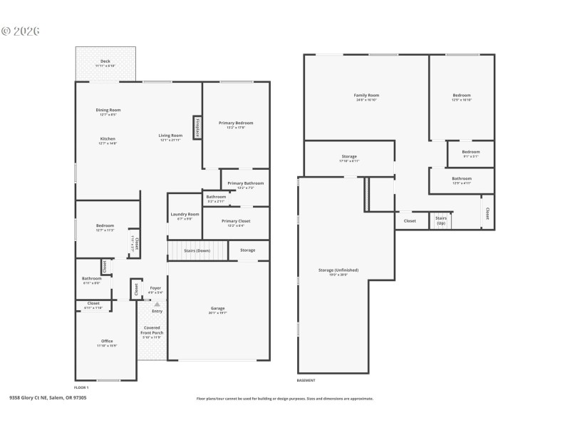
NEW CONSTRUCTION! "Spring Special" builders incentive package! Move in ready at just over 3,000 square feet, this is the largest new construction floorplan offered so far in the Bethel Park community! This 2-story daylight basement layout offers multi-generational living potential. The main living area contains the kitchen, great room, three bedrooms (including the primary suite), two full bathrooms and laundry. As you walk down into the lower level, you will find a spacious family/rec room, another bedroom, an additional bathroom and a large storage/multi use room (office, workout?) The home features a gas fireplace in the main level great room. Kitchen features SS appliances, quartz counters. A back deck will overlook a fully fenced backyard. Minutes from I-5, Keizer Station, Bauman Farms and more. Low county prop taxes. LA related to seller.
N on 99E, L on Hope, L on Parkway R on Fellowship R on Glory House on R
Dwelling Type: Residential
Subdivision: BETHEL PARK
Year Built: 2026, County: US
N on 99E, L on Hope, L on Parkway R on Fellowship R on Glory House on R
Listing is courtesy of Atlas Realty Advisors LLC
Sign in to your account to continue