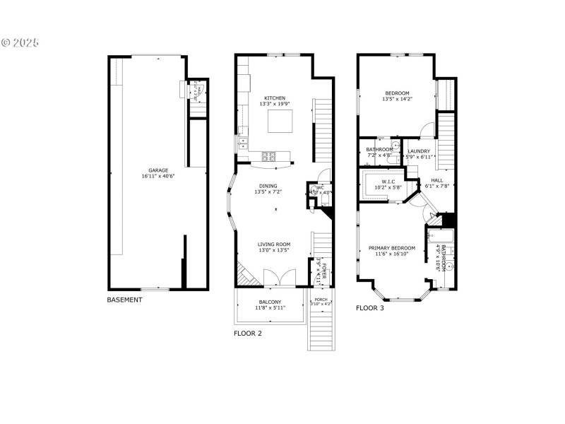
OPEN HOUSE SUNDAY 10/5 FROM 11:00-1:00! Perched in the heart of South Portland, this beautifully remodeled townhome offers style, comfort, and thoughtful detail at every turn. With two spacious ensuite bedrooms, a half bath on the main, and over 1,300 square feet of light-filled living space, the home blends modern function with artistic flair. The gourmet kitchen features custom cabinetry, a 6-burner gas range, wine fridge, and built-in refrigerator, all illuminated by sleek under-cabinet LED lighting. The living room opens to a balcony and centers around a gas fireplace with tile surround, integrated speaker system, and charging center. Upstairs, both bedrooms offer vaulted ceilings, walk-in closets and ceiling fans, with the front suite showcasing California Closet organizers, heated tile floors, a towel warmer, and a spa-like jetted tub. The extra-deep tandem garage is a rare find with extensive cabinetry, cedar-lined storage, and workspace. No HOA, move-in ready, and just moments from the riverfront trail and Ross Island Café. Be sure to review the full features list!
XStr S Kelly Ave & S Curry St
Dwelling Type: Residential
Subdivision: LAIR HILL/CORBETT
Year Built: 1995, County: US
XStr S Kelly Ave & S Curry St
Listing is courtesy of eXp Realty, LLC