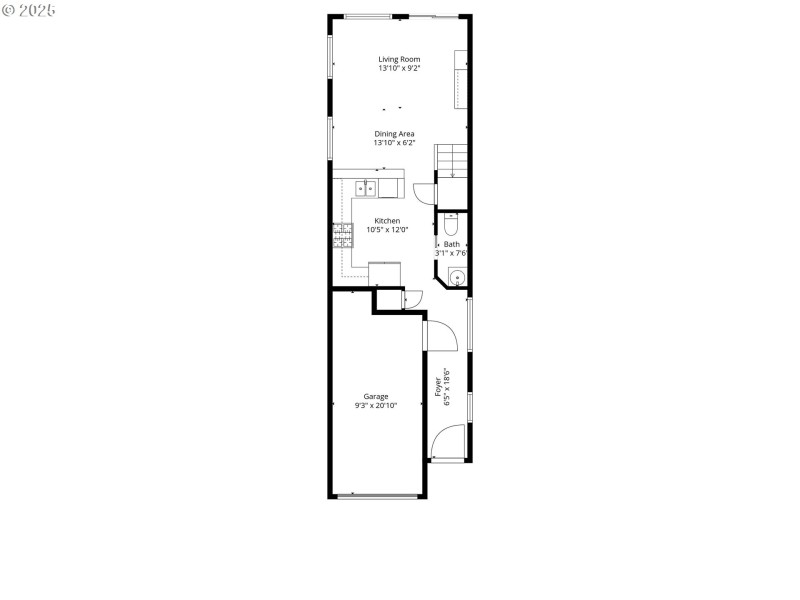
Close in Tigard home on quite cut-de-sac with easy access to HWY 217, I-5 and 99w. Open floor plan with a greenroom on the main with an open kitchen featuring an eating bar, stainless steel appliance and granite counters. three bedroom up stairs with a primary suite with double closets and a bonus room on the third level. Located on a large yard with a covered patio and shed in a fully fenced yard.
Greenburg Rd. to SW 96th Ave (between HWY 217 & 99w)
Dwelling Type: Residential
Subdivision: N/A
Year Built: 2010, County: US
Greenburg Rd. to SW 96th Ave (between HWY 217 & 99w)
Listing is courtesy of John L. Scott