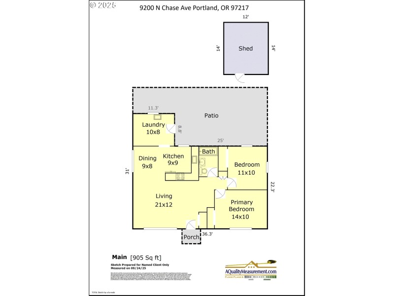
This 1955 Kenton Ranch landed a "Perfect 10" Home Energy Score - which is downright AWESOME and deserves a huge round of applause. 905 square feet of thoughtful living space, this home is both charming & functional with original hardwoods throughout and an easy, free-flowing floor plan to navigate. Once you arrive, you'll simply want to stay awhile. You'll appreciate the classy kitchen finishes such as the undercabinet lighting, granite countertops & stainless steel appliances. The delightful front & back yard are chock-full of well established plantings. There's a plethora of garden goodies growing on the property as well, too many to mention here! Additionally, the spacious laundry room at the back of the home opens to a sizable, welcoming patio and you'll treasure the garden shed (14 x 12) as it has plenty of room to store all your garden tools & supplies as well as your holiday decorations! Other features include: 2023 metal roof, fiber cement siding, mini-split delivering both heating & cooling and finally there’s plenty of off-street parking to meet your needs. Come tour this lovely home, you'll be glad you did! [Home Energy Score = 10. HES Report at https://rpt.greenbuildingregistry.com/hes/OR10242057]
On North Chase Ave. midway between Trenton St. & Newark St.
Dwelling Type: Residential
Subdivision: Kenton
Year Built: 1955, County: US
On North Chase Ave. midway between Trenton St. & Newark St.
Listing is courtesy of Windermere Realty Trust