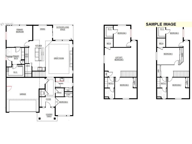
PRIMARY ON MAIN. This home has 3 Bed, 2.5 bath, large open loft(great 2nd Living area, playroom or media space) and covered back patio. The 11ft Ceilings in Great Room with open concept kitchen and dining is great for entertaining. Home includes slab quartz in the kitchen and large cooks island, SS appliances, fireplace, and Smart Home Technology. Proactive Builder Warranty, PLUS 2/10 Warranty for peace of mind.
GPS Address: 14749 Holcomb Blvd Oregon City, OR 97045
Dwelling Type: Residential
Subdivision: N/A
Year Built: 2026, County: US
GPS Address: 14749 Holcomb Blvd Oregon City, OR 97045
Listing is courtesy of Pacific Lifestyle Homes Inc