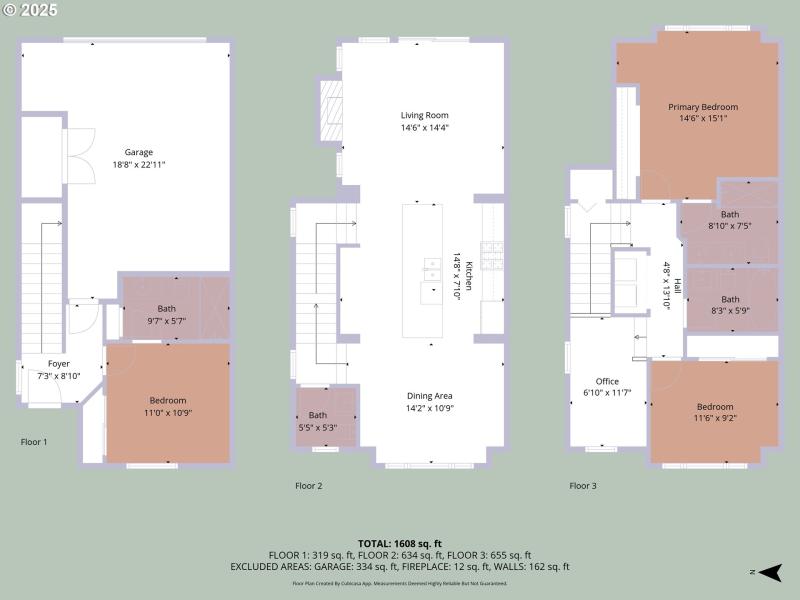
Experience the blend of luxury and technology in this top-quality corner unit condo perfectly positioned at Baseline & Cornelius Pass Rd., offering a tranquil setting along the Reedville Trail and surrounding greenspace. The open-concept design is abundant in natural light and features a gourmet kitchen with an expansive Quartz island, eating bar for four, stainless steel appliances, and gas cooking, complemented by a cozy gas fireplace and private balcony in the living area.The Luxury Vinyl Plank flooring sets a designer tone, while the unique layout offers unparalleled privacy with three bedrooms, each having a private bath, including a spacious upper-level Primary Suite with a dual-sink vanity and a private ground-floor second Primary Suite—ideal for roommates or guests. This home is truly smart and secure, featuring a whole-house surge protector, electric car charger in the extra-wide garage, Anker Solix battery back-up, smart power panel, voice-operated smart switches, and a Ring door camera, all with an incredibly affordable $235/month HOA. Your new home awaits!
NE Caitlin St x NE 78th Ave
Dwelling Type: Residential
Subdivision: SEQUOIA VILLAGE CONDO
Year Built: 2016, County: US
NE Caitlin St x NE 78th Ave
Listing is courtesy of All Professionals Real Estate