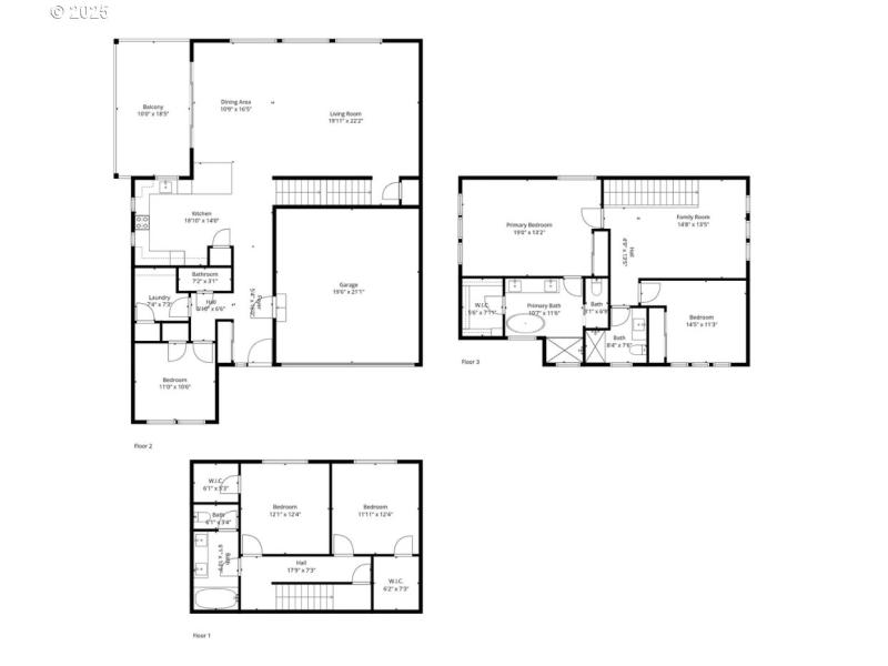
Modern house in the forest - this brand new NW Modern home was thoughtfully designed for modern day living with details and fixtures influenced by mid century design. Enjoy the added benefit of the energy-efficient upgrades including the high efficiency heating/cooling systems, high level of insulation, high performance windows and an independent heat recovery ventilation system. The main level greets you with a large living room featuring vaulted ceilings,and a wall of windows flooding the interior space with natural light. The open airy living room provides a seamless transition between the adjacent dining room and kitchen. The kitchen features beautiful custom cabinetry, quartz countertops, designer lighting and tile. Sliding glass doors open the dining/great room to an exterior deck overlooking the lush forested green space, covered by a beautiful overhang equipped with Cedar & Moss exterior light fixtures that allows you to enjoy and relax in the outdoors year round. Wide plank oak hardwood flooring runs throughout the main level with a laundry room, bedroom and a half bathroom. The upper level features a vaulted primary suite with a large walk-in closet and ensuite bath with soaking tub, slate floors and designer details. One additional bedroom, a full bath plus a large bonus landing area for an additional lounging space. The daylight lower level features views of the adjacent forest, two bedrooms and a full bath. A large double car garage is attached on the main level with off street driveway parking. This home is located at the end of a private cul-de-sac, built into its site that borders a tranquil dedicated green space. Surround yourself with nature and beautiful design while being just minutes to St. Vincent, Nike, Intel, and downtown Portland. Close to local shops, restaurants and hiking trails. [Home Energy Score = 9. HES Report at https://rpt.greenbuildingregistry.com/hes/OR10242250]
Thompson road to NW Blue Sky Ln
Dwelling Type: Residential
Subdivision: N/A
Year Built: 2025, County: US
Thompson road to NW Blue Sky Ln
Listing is courtesy of Modern Homes Collective