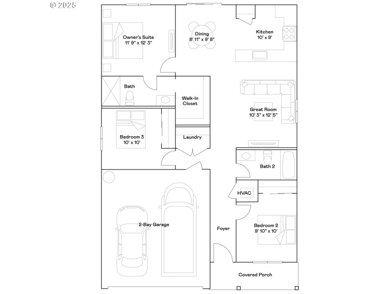
This new construction home is located in Meadowview, a serene community surrounded by protected wetlands and within close proximity to local parks & trails, with easy access to Fern Ridge Lake, grocery stores, schools, & restaurants. The Alderwood is a brand-new single-family home that has everything needed for modern living on a single level. A bedroom can be found off the entry, perfect as a guest suite or home office space, leading to an open floorplan consisting of the kitchen, dining area and great room. Two additional bedrooms are tucked to the side of the home, including the luxe owner’s suite, featuring a walk-in closet and en-suite bathroom. A two-bay garage completes the home. Interior highlights include quartz countertops, shaker-style cabinets, LVP flooring in the kitchen and bathrooms. This home also includes central air conditioning, a refrigerator, washer and dryer, and blinds—all at no extra cost! Located on homesite 80, this home is expected to be complete in January 2026. Rendering is artist conception only. Photos are of a similar home, features and finishes will vary.
N. Terry to West on Royal Ave, R on Legacy St, R on Bainbridge Rd, home is on the left
Dwelling Type: Residential
Subdivision: MEADOWVIEW
Year Built: 2026, County: US
N. Terry to West on Royal Ave, R on Legacy St, R on Bainbridge Rd, home is on the left
Listing is courtesy of Lennar Sales Corp