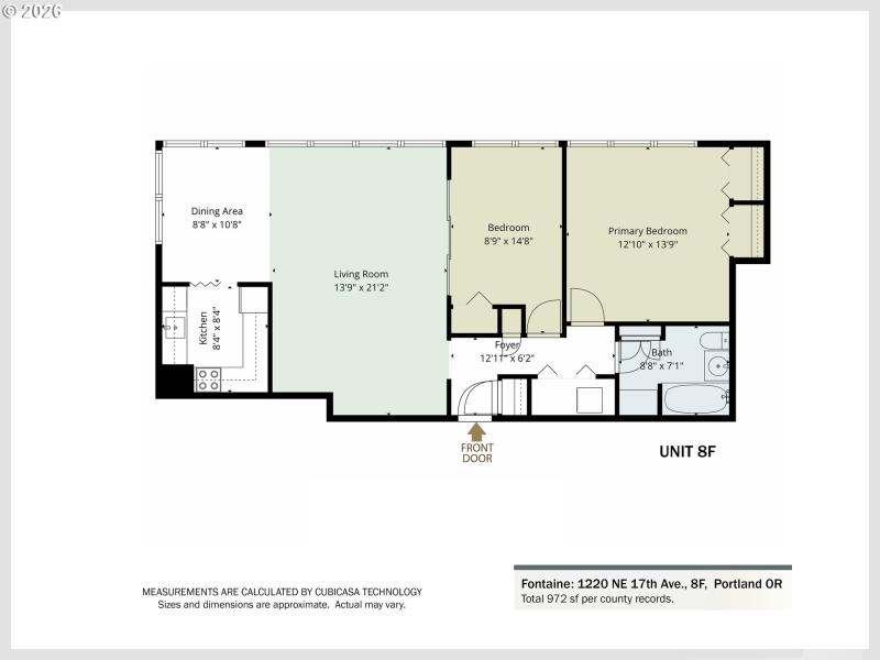
Soak up the mid-century cool in this upper-level corner condo that serves just the right amount of retro flair. Start your mornings stretched out on the custom banquette, sipping a glass of Tang or Ovaltine while you take in unobstructed city views—very Jetsons, very chic. Your vinyl collection deserves a spotlight, and the built-in cabinet designed for a turntable delivers, spinning good vibes all day long.Warm cork flooring sets the tone, perfectly complementing the original wood trim, kitchen cabinets, and classic sliding doors. The second bedroom is just the right size for a home office, nursery, or creative retreat. Step into the bright, cheerful kitchen and you’ll feel instant throwback energy—cue the go-go boots. You might even be inspired to whip up a Jello dessert that would make grandma proud. A brand-new, never-used range and refrigerator pair effortlessly with a newer dishwasher for modern convenience with vintage charm.When summer heats up, keep things cool with two efficient heat-pump mini-splits, paired with roller shades to help beat the heat. Still craving more retro? Head down the hall to the bathroom, where pink and silver foil wallpaper meets original 1963 tile in all its atomic-age glory. And yes—it wouldn’t be a true trip down memory lane without the built-in chrome revolving cabinet, cleverly hiding your toothbrush, soap, and water cup.The layout is as flexible as your imagination: no load-bearing walls means you can open up the kitchen or second bedroom for easy, open-concept entertaining. Take the party upstairs to the sky-high roof deck with 360-degree city and mountain views—Mt. Hood, Mt. St. Helens, and Mt. Adams all make an appearance. Well-maintained community spaces are also available to reserve for private gatherings.Round it out with deeded underground parking to keep your car dry and warm, plus a deeded storage locker. The Fontaine is a welcoming, well-cared-for community where homeowners take pride in their building.
Corner of NE 17th Ave & NE Multnomah
Dwelling Type: Residential
Subdivision: SULLIVANS GULCH/FONTAINE
Year Built: 1963, County: US
Corner of NE 17th Ave & NE Multnomah
Listing is courtesy of Windermere Realty Trust
Sign in to your account to continue