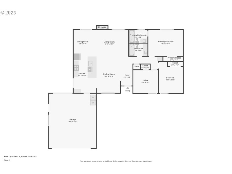
This beautifully updated home offers comfort, style, and convenience. Enjoy a newly remodeled 2024 kitchen featuring new appliances, soft-close cabinets with pull-outs, under-cabinet lighting, a mixer lift, and island outlets with USB ports. The extra-deep, drive-through 2-car garage adds versatility, while the entire-house water filtration system ensures peace of mind. Recent upgrades include roof, gutters, and exterior paint (all just 3 years old), plus a heat pump for efficient heating and cooling. Outside, relax in the fenced yard with a garden shed for storage. Don’t miss this move-in ready gem!
From Lockhaven take Steven, make right on Cynthia, home on the right
Dwelling Type: Residential
Subdivision: Vistaview Estates
Year Built: 1978, County: US
From Lockhaven take Steven, make right on Cynthia, home on the right
Listing is courtesy of Works Real Estate