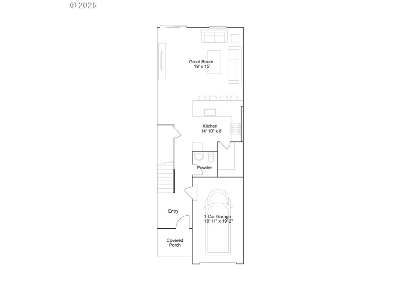
Welcome to Riverwood Crossing by Lennar. This new construction Reagan plan presents a modern two-story townhome design with an open-concept first floor that unites the kitchen, dining, and great room areas, ideal for both everyday living and entertaining. Upstairs, a versatile loft separates two secondary bedrooms from the private primary suite, which includes a walk-in closet and an ensuite bath featuring dual vanities. Interior finishes include quartz countertops, Shaker-style cabinets, and LVP (luxury vinyl plank) flooring in the kitchen and bathrooms, plus fencing, landscaping, and sprinkler irrigation for added convenience. This home also includes central air conditioning, a refrigerator, washer and dryer, and blinds—all at no extra cost! Riverwood Crossing is near Gibson Hill Park, Golf Club of Oregon, & historic downtown Albany, with Oregon State University just 20 minutes away. Photos are of a similar home, features and finishes will vary. MOVE-IN READY! Homesite: #69. *Flex credit/closing cost incentive available when financing with preferred lender! Use towards rate buydown and closing costs.*
Gibson Hill Rd to South on Laura Vista Dr NW, home is on the left
Dwelling Type: Residential
Subdivision: RIVERWOOD CROSSING
Year Built: 2025, County: US
Gibson Hill Rd to South on Laura Vista Dr NW, home is on the left
Listing is courtesy of Lennar Sales Corp
Sign in to your account to continue