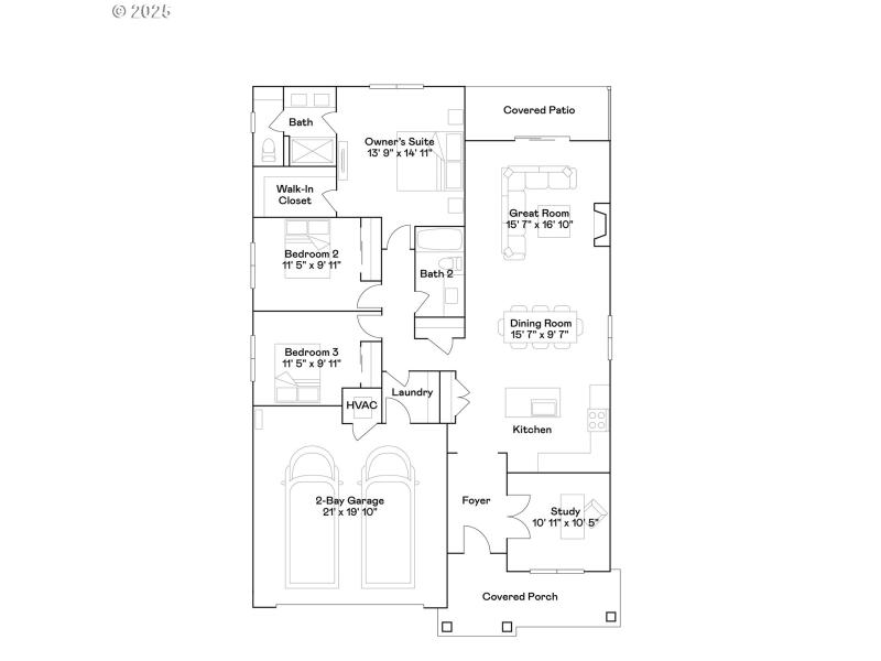
A single-story with a split design, this home was designed for family living. On one side, the open layout flows the kitchen, dining room and Great Room together — leading to a back patio. Adjacent, the impressive owner's suite overlooks two additional bedrooms. A study near the foyer further optimizes the space. Home backs to trees for a private back yard, home comes complete with AC, blinds, all appliances including refrigerator, washer and dryer. Tankless hot water heater, landscaping, back yard fence and underground sprinklers. Complete July 2026. HS 228.Pictures are of similar home.
Columbus St. to Seven Mile Ln.
Dwelling Type: Residential
Subdivision: HENSHAW FARM
Year Built: 2026, County: US
Columbus St. to Seven Mile Ln.
Listing is courtesy of Lennar Sales Corp
Sign in to your account to continue